Август 1972-го. Археолог на время стал лесорубом: широкий просвет в непролазной чаще — дело его рук. Начинаются раскопки. И вот уже извлечены первые находки: каменное ядро, железные наконечники стрел. Под завалом стены — человеческие костяки… Здесь разразилась битва. Пылал подожженный турками Мангуп — столица феодоритов, грохотали (новинка тех дней) турецкие пушки. Было это осенью 1475 г.
В ближайшие годы археологическое изучение Мангупа будет продолжено и расширено, однако новая книга о нем появится, пожалуй, нескоро. Тем временем в этой читатель найдет рассказ об итогах многолетних работ, посвященных истории Феодоро — города и государства.
Содержание
Введение
Ничто, в какой бы то ни было части Европы, не превосходит
ужасающей величественности этого места.
Э. Д. Кларк, английский
путешественник начала XIX в.
Княжество Феодоро с одноименной его столицей на горе Мангуп — одно из интереснейших явлений в истории юга нашей страны. Многие исследователи, в том числе такие широко известные, как П. С. Паллас, П. И. Кеппен, Ф. Дюбуа де Монпере, А. Л. Бертье-Делагард, и другие отдали дань его изучению1. Письменных же свидетельств о нем так мало, что к суждениям о многих и притом самых существенных сторонах его бытия приходится подходить археологическим путем. Правители этого небольшого государства именовались (да и на деле были) князьями в течение лишь относительно недолгого времени — в лучшем случае с конца XIV в. до 1475 г., когда княжество пало под ударами турок. К этому периоду относятся надписи на каменных плитах2, из которых мы узнаем о самом существовании Феодоро и «Поморья», об их владетелях, о военно-строительной деятельности последних. Именно к этому времени относятся немногочисленные свидетельства современников, называющих имена мангупских князей, а также и те сооружения, оборонительные и общественные, с которыми могли быть связаны упомянутые надписи.
Правда, в основаниях боевых сооружений Мангупа, как и ряда других окружающих его укреплений юго-западной Таврики, лежат остатки более ранних построек, в свое время крепких и, быть может, не менее величественных, чем те, руины которых сохранились до наших дней.
Ниже будет подробнее сказано о том, что между этими раннесредневековыми укреплениями и херсонесскими существует известное сходство3. Оно-то и дало повод отнести их все к VI в. — преимущественно ко времени царствования византийского императора Юстиниана I. Некоторые исследователи усматривали в них «римско-византийский лимес«4 на подступах к Херсону, который якобы имел в виду Прокопий Кесарийский, современник и историограф Юстиниана, когда писал о построенных при этом императоре «длинных стенах», защищавших некую Дори — землю таврических «готов«. Мы же полагаем, вслед за П. И. Кеппеном и другими, что Дори и ее стены находились в ином районе Таврики5.
Говоря о стенах Херсона, Прокопий ни словом не обмолвился о строительстве ближайших к нему укреплений, — вот когда вопрос был бы ясен! Но ведь молчание Прокопия можно понять и как знак того, что Каламита, Мангуп, Сюйрен и другие крепости, в которых немало византийских черт, во времена Юстиниана еще не были построены. Их сходство с укреплениями раннего Херсона само по себе позволяет сказать лишь, что они появились не позднее X в.
План Мангупа
Как бы то ни было, в XII-XIV вв. мангупское укрепление из малого стало большим, а в XV в. из рядового — главным для большого и густонаселенного района Таврики. Какими же путями оно подчинило себе соседей и дало начало городу, ставшему столицей целого княжества? В силу каких причин город Феодоро сделался средоточием всей южной части полуострова, а княжество Феодоро, как увидим, на какое-то время стало реальной политической силой не только в Крыму, но и далеко за его пределами?
В книге, посвященной столице феодоритов, нельзя обойти молчанием и связи Таврики, в частности Мангупа, с Русью. История Крыма, как известно, переплелась е историей Киевской, Новгородской, Московской Руси, а затем России и Украины.
В комплексе подобных проблем, невыясненного еще долго будет больше, чем решенного. Археологи, пишущие о Мангупе, в данном случае делятся с читателем не только сведениями бесспорными, но и теми рабочими гипотезами, которые неизбежно возникают при изучении памятников крымского средневековья, в том числе Феодоро и его столицы.
Кроме изданных работ по Мангупу и юго-западной Таврике, авторы использовали как собственные наблюдения, так и полевые материалы, предоставленные им Е. В. Веймарном, который помог им и в подготовке книги, несмотря на некоторые разногласия в интерпретации отдельных памятников.
Окрест Отчей горы
Мангуп, или, если говорить о самой горе, Баба-Даг, — большой сложенный мшанковыми известняками останец. Он возвышается точно остров среди трех смежных долин: Каралезской, Джан-Дере и Адым-Чокракской. Проходящие по ним дороги соединяются, окружая Мангуп подобно петле, концы которой выходят в бассейн реки Бельбек: один у села Танкового (б. Биюк-Сюрень), а другой — в районе большого поселка Куйбышево (б. Албат).
Юго-западнее Мангупа от той же петли отходит еще одна дорога, ведущая на правый берег реки Черной. Кроме того, возле села Залесного (б. Юхары-Каралез) от Каралезской долины ответвляется влево узкая балка, тянущаяся до самого Эски-Кермена — второго после Мангупа по своему научному значению архитектурно-археологического комплекса. Посреди села Красный Мак (б. Биюк-Каралез) в Каралезскую долину вливается еще одна, более широкая, балка, по которой можно попасть и к Эски-Кермену и на известную всем большую дорогу из степного Крыма в Херсон. Современное севастопольское шоссе повторяет существовавший издревле путь в Херсонес между Второй и Третьей горными грядами.
Таким образом, Мангуп оказывается (и это во многом предопределило его судьбу) в центре целой системы извилистых балок, больших речных долин, лесистых и местами скалистых водоразделов, отдельных столовых гор, связанных сетью дорог, исстари раскинутой в этой части Таврики. Труднодоступные плато столовых гор, из которых крупнее и выше всех Мангуп, средневековое население использовало для строительства убежищ и крепостей.
Вся территория обширного Мангупского плато была обжита и заселена, окружена оборонительными стенами и башнями. С трех сторон его края ограничены скалистыми обрывами (до 40 м по вертикали), северный же склон горы прорезали три глубоких оврага — Капу-Дере (от слов «капу» — вход, ворота и «дере» — овраг), Гамам-Дере (Банный овраг), Табана-Дере (Кожевенный овраг). С этой стороны можно было не только взойти, но даже и въехать на плато.
Вид на плато и цитадель Мангупа со стороны оврага Капу-Дере
Между оврагами — четыре выступа, или мыса, точно четыре гигантских пальца, вытянутых к северу. Средневековые названия их (вернее — дотатарские) в наше время забыты. Восточный мыс называется ныне Тышкли-Бурун (Дырявый) из-за того, что он весь источен искусственными пещерами; следующий к западу — Елли- , или Элли-Бурун (Ветреный, по другому предположению, Эллинский, т. е. греческий, мыс); затем Чамны-Бурун — Сосновый мыс и Чуфут-Чоарган-Бурун — довольно нескладное название, переводимое как «Мыс призыва иудеев». Происхождение последнего совершенно загадочно, но оно, может быть, связано с поселением здесь в XVIII в. караимов, о чем будет сказано в конце книги.
Нелегкий подъем на Мангуп возможен по каждому из оврагов. Наиболее же «комфортабелен», т. е. наименее крут, подъем по ездовой дороге, идущей по южному склону Мангупа и далее к главным воротам в верховье Капу-Дере. Еще одни ворота были над оврагом Табана-Дере. Относительно ворот или калитки в Гамам-Дере сведений нет, в настоящее время это излюбленный путь туристов, ибо тропа проходит мимо бьющего из-под скалы родника, расположенного уже внутри города. Пролом в стене, через который она пролегает, мог образоваться на месте входа, каковой был тут вполне уместен.
Скалистые, несколько вздернутые кверху мысы Мангупа видны со всех сторон на весьма изрядном расстоянии. Все прочие, менее высокие холмы и скалы юго-западного предгорья не в состоянии их заслонить.
Взгляните с Мангупа на ближние скалистые холмы и дальние горные цепи Главной гряды. Панорама эта — как бы «введение» в средневековую историю юго-западной Таврики: что ни возвышенность, видимая с Мангупа, то какой-нибудь средневековый памятник, и с высоты его точно так же виден Мангуп. Зрительные связи ассоциируются со связями историческими: все эти памятники составляли некогда один грандиозный, веками сложившийся комплекс.
Мангупские дали
В конце XIV или в XV в. с высоты Баба-Дага можно было обозреть чуть ли не все Мангупское княжество.
Если стать лицом на запад — видна часть Северной бухты Севастополя, куда впадает река Черная. Над устьем ее стоят, отсюда впрочем невидимые, руины Инкерманской крепости — Каламиты. Крепость эта построена на отвесной, местами нависающей скале, примечательной множеством высеченных в ней пещер. За бухтой далекий морской горизонт сливается с небом, а на сверкающей водной глади еле-еле заметны черные точки бороздящих ее кораблей. Зато ясными ночами видишь, как ярко светятся их движущиеся огни. Средневековый владетель Мангупа, мечтавший о неведомых землях, богатстве и морской торговой славе, вероятно, не раз обращал с вершины Баба-Дага свой взгляд к далекому рейду. Можно представить себе, что за мысли теснились в его голове…
…Левее Северной бухты приподнята над морем длинная и неровная сине-серая полоса суши. Это — Гераклейский полуостров. Издревле принадлежал он византийскому Херсону, а теперь чей? Время покажет, кому достанется эта земля. Если по праву, то не ему ли, родичу бывшего «императора ромеев», наследнику гибнущей Византии и уже полумертвого Херсона… Еще левее на фоне неба темнеет силуэт главной башни Чембало. Крепость и бухта — кровное достояние Мангупа. Была бы она для него вожделенным выходом в морские просторы, да овладели ею генуэзцы, самозваные пришельцы из-за моря. Чуть правее Чембало и много ближе — рукой подать от Мангупа — белеют над лесом скалы Эски-Кермена — старой крепости, убежища предков. Это город хлебопашцев, пастухов, набожных монахов, украсивших мастерским художеством многочисленные пещерные храмы. Здесь же, на Эски-Кермене, большая базилика — не хуже мангупской: с мраморными колоннами, с изящной византийской резьбой.
Давно уже нет боевых стен на столовой горе. Но и ныне старая крепость — сердце большой и богатой сельской округи, защищенной замком Кыз-Куле, хозяин которого, хочет не хочет, а чтит и признает владетеля Феодоро.
Еще левее (южнее) темнеет лесистый Калафатлар. На хребте этом тучное пастбище, а за ним на неприступной высоте мыса Айя скрывается крепостца — орлиное гнездо Кокия-бея (так зовут его татары). Кокия — небольшое владение, замкнутое с трех сторон неприступными горами, а с четвертой — головокружительным обрывом с короткой и тесной — далеко-далеко внизу — полоской песчаного берега, заливаемой пенистым прибоем. Узкая щель круто ведет на берег сверху — от тамошнего князька.
Спуститься к воде он может — искупаться, рыбки половить; пожалуй, и на челне поплавать — для забавы, когда безмятежно море. Только вечно там ветер. И опасны подводные скалы… Под обрывом бурлит изо дня в день морская волна. Корабли здесь не причалят; не стать этому «бею» морским князем, так он и останется скотоводом. А все, что захочет иметь сверх мяса, сыра и бараньих шкур, — за них же и получит. Конечно, из рук владетеля Феодоро. Или силой отнимет у соседа?..
Беден, задирист и горд этот разбойный князек, но не соперник он — свойственник владыки и хоть нерадивый, но данник Мангупа…
…Ласпи — урочище южнее замка Кокия. Отсюда начинается Тавр — Главная гряда Крымских гор. За узкой ласпинской яйлой с тремя ее перевалами, скотопрогонными дорогами и пастушьими кошарами высится гора св. Ильи. На ней — монастырь во имя этого святого, а у ног ее — Ласпи, большое село, где живут скотоводы и землепашцы. Ниже, в открытой к морю котловине, еще поселения земледельцев: Шабурла, Хаспио, четыре других — дочерних, как бы отросших от тех и пока безымянных. Все это вольные общины, у которых нет князя. Не слишком ли их много и не чересчур ли свободны они, общины Готии? Но уже зажимают их соседние княжеские владения, свои сильные люди прибирают к рукам то поле, то пастбище. А в Ласпи общинники загородились стенами: князя над собой не знают, но признают (благочестивые люди!) — не владычество, нет — старшинство монастыря, чтят его патрона — громовержца Илью, дающего дожди пастбищам и нивам.
Это Ласпи — куда ни шло: есть глубокий залив с отлогим берегом, пригодным для стоянки судов, появились и рыбацкие выселки. Стоят они у самого моря, а над хижинами рыбаков уже вырос и чей-то большой дом. Толстые стены под черепичной кровлей, несколько помещений, мозаичные полы — в пору и самому князю. Всего-то рыботорговец, а со временем, поди, хозяин и правитель Ласпи!..
Где рыболовное (морское!) дело — там и застучал топор, зазвенел молот о наковальню… Есть и ремесленные выселки — от земледельческих поселений; ведь что ни говори — тесно становится в Хаспио и Шабурле с их огороженными оборонительной стеной усадьбами, с размежеванными по семьям участками. Поселились мастеровые у родника под монастырской скалой, обжигают черепицу, что-то куют… Руды хватает в ручьях среди скатанных водою камней. Пилят они мягкий туфовый камень, режут из него блоки для сводов, карнизы, столбы. Заказчиков немало: наверху монастырь — послужат и господу за сходную плату; справа — рыбаки, рядом — родичи-поселяне, слева, на Чобан-Таше — пастухи с их отарами. Одному нужен хорос для церковных свечей, черепица для кровли, камень для сводов храма; другому — уключина для весла или якорь, третьему — лемех для плуга, четвертому — подкова, стремя или навершие для пастушьей герлыги… Живет себе урочище Ласпи и без князя, как это ни плохо. С общинников надо глаз не спускать, поблажек не давать; однако и дружить с ними нужно — при случае пригодятся.
То же и в Байдарской долине, отсюда не видной за ближними горами. Там тоже без его, княжьей опеки, общины, и каждая норовит жить по-своему. Поживут — до поры до времени. Ну, а генуэзцы — те знают в чем суть: сидят в Чембало, дают взаймы общинам Готии и под немалый процент. Чтобы опутать, подчинить себе всю кампанью — ближайшую сельскую округу. Жаден генуэзский торгаш и дает для своей лишь выгоды, но посмотрим еще, чья возьмет. Будут, будут брать деньги в долг работяги-общинники у единоверного князя и станут тогда своими — княжескими.
Если взглянуть правей Каламиты, на север от Мангупа вдаль уходят холмы — повитое туманами предгорье. Там ближайшие села Мангупа. А сразу за ними, за горами, за долами, раскинулись — взглядом не охватить — татарские степи.
Да и рядом они примостились, татары, на Каче. Захватили земли и крепость кырк-орского князя. Давненько уже в Кырк-Оре сидит их хан… Силен и богат стал, как видно, вчерашний бродяга-кочевник — строит дворцы. Немало от этого соседа забот и тревог феодоритам, хотя и прошли уж те дни, когда приходилось с ним биться, мечом и копьем отстаивая свою землю. Теперь все утряслось — соседи должны дружить, но того и жди, что все обернется иначе. Вероломна ханская дружба, как непостоянна и вражда: кто забренчит кошельком, тот ему и друг — на сегодня, пока полон кошель. Генуэзцы хану — тоже друзья…
Правее, восточней Кырк-Ора (он чуть виден с Мангупа), высится крепость Тепе-Кермен, а перед нею — невидимый отсюда монастырь Качи-Кальон; правее — Бурун-Кая, крепостца небольшая, но сильная своим местоположением. Сразу и не понять, чьи они, эти укрепления — татарские или мангупские. Неясны и зыбки в тех местах границы владений феодорита, расплывчаты, как и сами разветвленные верховья Качи.
Но ведь не татары оседло живут здесь, а греки. Единоверные — значит, какая-то родня феодориту. Ими построен богатый из богатых монастырь Качи-Кальон с подворьями на ручье Финарос и речке Марте. Есть там и крепости: Кермен-Кая на хребте Басман, Яманташ под Оксеком, Киппиа под горою Рока. Все это не то чтобы свое, но родное, православное, и, может быть, не сегодня, так завтра — княжье. А от левого берега Качи, от крепости на мысе Бурун-Кая и ближе — по Бельбеку — все укрепления мангупские: Керменчик возле селения Лаки, Сюйренская крепость с монастырем Ай-Тодор и два замка — на вершинах Сююрю-Кая и Сандык-Кая.
Прямо перед Мангупом, как огромная хищная птица, взметнувшаяся над верховьем Бельбека, темнеет пятиглавая Бойка — «почтенная Пойка». Шесть ее поселений уже признали верховенство Мангупа, но стоит над ними не мангупский владетель — храм Спаса, что на седле Сотеры. К храму ведут все дороги из окрестных селений, при нем кузни, овчарни. Вокруг церковных владений — толстые стены, две сторожевые крепостцы: целый удел, принадлежащий самому господу-богу, но с князем-попом во главе.
Не зря на Мангупе, под рукой у владетеля Феодоро и рука об руку с ним, — пастырь духовный всей этой земли, епископ Готии. В пещерном храме-святыне и усыпальнице правящего дома — молится он о здравии своего князя. Рядом — дорогу перейти — Шулдан, личная резиденция «преподобного», тоже с пещерным великолепно украшенным храмом. Чуть подальше — его же, епископа (монастырское, конечно) хозяйство: Челтерское подворье с винодельнями, окруженное виноградниками, нивами, пастбищами.
Не епископа ли кормит и сельцо Ай-Тодор того же имени, что и сам Мангуп — Феодоро? Византийским благочестием, издревле установленным, византийским, «святым» и веками утвержденным обычаем, по византийским законам, хоть и сама по себе, живет вся эта земля. Широкие крылья двуглавого орла Палеологов (родичей, а еще недавно — повелителей) издали осеняют и владения Мангупа. Да долго ли будут осенять? Год от года слабеют эти крылья, и давно уже привык феодорит жить своим умом — сообразно с обстоятельствами.
Повернись на восток — застит солнце могучий Чатыр-Даг. Чей он? Ничей? За ним — тоже край мангупских владений: безымянная сторожевая крепостенка на утесе над перевалом, пониже — Фуна, придорожный укрепленный монастырек и село с доходными (при таком-то месте, еще бы!) кузнями, садами, полями. А у моря — крепость Алустон, яблоко раздора, предмет вечных споров и вооруженных стычек феодоритов с генуэзцами…
…Так или почти так мог рассуждать в XIV в. владетель Феодоро, озирая с высоты Баба-Дага свои владения. Станем на его место и глянем на юг: как и в те времена, синеют на фоне неба вершины Главной гряды Крымских гор — Кемаль-Эгерек, Демир-Капу, между ними горы пониже — Эндека, Рока, Оксек… Главной грядой прикрыт Южный берег. Там сохранились развалины построенных в VI в. византийских крепостей. Алустона и Горзувит, а также позднее возникших (в VIII-IX вв.) укрепленных монастырей — св. Апостолов в Партенитах, Ай-Тодора над Ламбатом, Панеа возле селения Ай-Панда. Есть там немало и других, менее важных крепостей — мелких замков, монастырей, сторожевых блокпостов, сельских убежищ, а больше всего храмов и поселений — рыбацких возле самого моря, земледельческих — на склонах к нему, между подножием обрывистых скал гряды и берегом. Вплотную к скалам, поближе к перевалам и скотопрогонным дорогам, льнули поселения скотоводов: летом они выгоняли скот в горы, зимой содержали его в стойлах, на собранном в горах сене, или пасли внизу, на перелесках среди полей и на межах между виноградниками и садами.
Благодатное Поморье — густо заселенный край, ворота, распахнутые в море, к проливам, к чужестранным землям. Туда из-за моря приходили, оттуда же за горизонт уходили большие корабли: в Поморье — с заманчивыми иноземными товарами, обратно — с хлебом, рыбой, мясом, кожей, шерстью. Морем прибывали и новые люди, приносили новости — хорошие или плохие, но всегда важные для тех, кто населял горную Таврику.
Северные отроги Главной гряды — Тавра, давшего в древности имя и полуострову и его коренным обитателям, смотрят на Мангуп. Между отрогами берут начало главные реки предгорья: Черная, Бельбек, Кача, Альма, Салгир; сюда сбегают с гор и многочисленные их притоки. Питает же всю водную сеть огромный водосбор яйлы — нагорья Главной гряды, издревле служившего летним пастбищем для стад Таврики.
Яйла, местами издырявленная карстом, походит на зеленое покрывало, накинутое на могучий плосковерхий кряж. Из-под скал его бьют неиссякаемые ключи свежей и чистой воды, наполняющей ручьи, что журчат в балках и мелких горных долинах. С обилием воды и относительной замкнутостью (т. е. безопасностью) было связано в эпоху средневековья все хозяйственное освоение района, заключенного между Главной и Второй грядами.
Возраст многих поселений и укреплений Таврики теряется в дали времен, восходит к стоянкам, поселениям, убежищам эпохи первобытнообщинных отношений или позднеантичного времени. Когда Великое переселение народов забросило на полуостров готов (III в. н. э.), а затем гуннов (IV в.), сюда, ближе к спасительным дебрям гор, ушли из речных долин аборигены: «оскифленные» потомки тавров, «осармаченные» потомки скифов, «огреченные» сарматоаланы и, разумеется, греки. Греки и еще раз греки — жизнелюбивое и жизнеспособное, торговое, вездесущее племя. Как бы ни варваризировало греков Северное Причерноморье, они и в таврической глуши не растеряли своих богатств: технической и духовной культуры, науки, искусства, выше которых не ведал тогдашний цивилизованный мир. Этим и можно объяснить, что уровень жизни на поселениях Таврики, насколько это видно по археологическим данным, достаточно высок для своего времени.
В силу ряда причин римское, а вслед за ним и византийское владычество не успело стать здесь тем абсолютным порабощением, какое можно наблюдать в иных местах. Политическое и военное подчинение Таврики византийскому императору было довольно относительным и не повсеместным.
Глубинные районы полуострова оставались, по существу, самостоятельными. Любое из таких поселений, если оно находилось подальше от византийских властей, жило своим замкнутым мирком, в меру враждуя с ближайшим соседом; каждое строило примитивные убежища для охраны не столько самих себя, сколько скота — источника всех мирских благ. Скот кормил и одевал своих хозяев, унавоживал поле, служил тягловой силой и транспортным средством; скот был мерой благосостояния и именитости рода, а вскоре стал мерилом силы и знатности его предводителя.
Дальше все шло в Таврике, видимо, не иначе, чем всюду в то время, т. е., что называется, «по-писаному». Каждый, кто управлял таким мирком, становился в его пределах известным и уважаемым липом: ему низкий поклон и повиновение соотчичей, ему же и лучший кусок общего пирога. Он, разумеется, не прочь был закрепить для себя и своих отпрысков столь исключительное положение. А для этого мало личного авторитета и заслуг перед ближней и дальней деревенской родней. Нужно обладать и силой, создавать — пусть вначале на примитивном уровне — некий аппарат принуждения и «службу информации», т. е. завести все, что впоследствии в развитом виде станет прерогативой и атрибутом государственной власти.
До этого в V-VI вв. в Таврике было еще далеко, но уже тогда вокруг руководящих персон могли группироваться — по степени родства или значимости оказываемых услуг и в меру своей активности — какие-то приближенные. Складывалась среди них и та иерархия, которая потом, под влиянием более развитых социальных отношений, перерастала в сложную и многоступенчатую систему феодального правопорядка.
При археологическом изучении раннесредневековой Таврики можно наблюдать, как процесс ее феодализации отразился в материальной культуре, т. е. в археологических памятниках. Мы видим в Ласпи, Артеке и других местах, что на протяжении каких-нибудь трех-четырех столетий (V-VIII вв.) растут окруженные оборонительными стенами сельскохозяйственные поселения с созданными коллективно ирригационными сооружениями, крепидами на террасированных горных склонах, колодцами, дорогами и т. д. Видим, как от этих поселений обособляются укрепленные и труднодоступные убежища, как внутри них возникают жилые постройки. Жилища, прежде одинаково убогие, начинают делиться на хижины и зажиточные дома покрупнее прочих, со службами и загонами для скота. Одновременно дробятся и мельчают одни угодья и разрастаются вширь на лучших, наиболее удобных землях другие.
Стимулятором интенсивной феодализации Таврики косвенно послужили события VIII-IX вв. Византия переживала сильный экономический кризис и внутренние политические неурядицы, была занята борьбой с внешним врагом — арабами и ослабила свой режим в Таврике. Это не могло не усилить центробежные стремления каждого из бесчисленных протевонов («первейших») и таким образом ускорить превращение «первого» в «главного», в маленького повелителя, враждующего со своим соседом или заключающего с ним непрочные союзы против третьего такого же. Окружая себя вооруженной дворней, дружиной отборных бездельников из числа воинственных и преданных его особе родичей и односельчан, полупатриархальный владыка получал неограниченную возможность эксплуатировать свою деревенскую родню6.
Сходство в устройстве, размерах, фортификации и прочих деталях укреплений средневековой Таврики и других мест (от Скандинавии до Балкан, Апеннин и Пиренеев)7 позволяет предполагать в ее пределах такие же экономические и социальные структуры, какие известны в истории стран, где этот период полнее освещен письменными источниками.
В процессе археологических разведок в горах Таврики не раз были обнаружены развалины поселений, по-видимому, принадлежавших независимым сельским общинам. Одни из них — «ячеистой» структуры — связаны в одно целое: дом, хлев или виноградник одной семьи примыкают к таким же хозяйственным ячейкам прочих семей. Другие поселения — ульеобразной планировки — были расположены на крутых отдельных высотах, с полями в долине — далеко за оборонительной чертой. Поселения первого типа, более ранние, возникали на мало обжитых землях. Кем и как они управлялись, неясно, очевидно, как бы сами собой — силой обычая и на вполне коллективной основе. Однако недолог был век этих поселений: через несколько поколений наступал предел их территориального роста, начинался передел земли, ломка первоначальной структуры. Это мы видим на примерах поселений Ласпи, Гаспры и ряда других, изученных в последние годы.
Поселения второго типа — более поздние (примерами могут служить Артек, Фуна и др.) Установлено, что были они долговечней, хотя и возникали в условиях территориальной тесноты и жестокой экономии земли, пригодной для обработки. Известно также, что управлялись они демогеронтами — старейшинами, составлявшими своего рода совет при храме или при протевоне. Процесс имущественного и социального расслоения можно проследить в данном случае по тем перестройкам и перепланировкам, которые пережило и следы которых сохранило каждое из них.
Совершенно особый характер носят руины укрепленных убежищ со стенами ярко выраженного оборонительного характера, порою с фланкирующими башенными выступами (примеры — Ореанда, Аю-Даг, Бага, Басман). Почти пустые внутри, построенные лишь на случай военной опасности, они порою заселялись, и тогда, как правило, приобретали выделенный внутренней стеной детинец — миниатюрное подобие кремля или акрополя (например, Сандык-Кая, Сююрю-Кая на Бельбеке и проч.).
Характерны для средневековой Таврики и крохотные жилые «замки» — настоящие орлиные гнезда на неприступных утесах (Исар-Кая близ Гаспры, Яманташ под горой Оксек, Сююрю и Сандык-Кая на Каче, Кермен-Кая на Бельбеке, Хачла-Каясы близ Ореанды). Вокруг каждого «замка» разбросаны были убогие сельскохозяйственные усадьбы, защищенные лишь выросшим над ними укреплением. При взгляде на эти руины невольно возникает образ воинственного и замкнутого вождя, неограниченного и полуцивилизованного предводителя военно-земледельческого, а чаще (в горных районах) военно-скотоводческого клана. В нем каждый друг другу по крови родня (хотя бы и «седьмая вода на киселе»), а всякий, кто не из этого клана, — чужак, потенциальный или действительный враг.
В VIII в., поневоле ослабив бразды своего правления в Таврике, иконоборческая Византия не могла помешать приходу сюда, на побережье, а затем и в горную глушь, гонимых правительством иконопочитателей — монахов, купцов, феодалов средней руки (а иногда и довольно крупных) с подчиненными им крестьянами, мелкими ремесленниками. Корабли, привозившие иммигрантов, привнесли в Таврику развитые феодальные отношения и готовую феодально-теократическую идеологию, воплощенную в ортодоксальном христианстве. В это время и появляется здесь ранее не известная фигура частновладельца, обладателя обширных земель и относительно богатой, нередко укрепленной усадьбы. Он живет в ней, надо полагать, со сворой вооруженных челядинцев, в окружении мелких и небогатых крестьянских усадеб, разбросанных по всему земельному наделу, присвоенному себе этим избранником судьбы. Присвоение могло происходить путем прямого захвата, но чаще, по-видимому, при помощи постепенного экономического закабаления односельчан.
Картина этой своего рода колонизации, разумеется, еще гипотетична, но она основана на довольно широком изучении средневековых памятников Таврики. Ей пока ничто не противоречит, а подтверждают ее все новые и новые данные археологических исследований.
Средневековая сельскохозяственная усадьба в балке Пхе-Йолга. (по Е.В. Веймарну и В.М. Маликову)
1 — жилая постройка с искусственной пещерой; 2 — заросли одичалого винограда; 3 — тарапан; 4 — прискальные хозяйственные строения.
Образчик средневековой относительно зажиточной усадьбы сохранился в балке Пхе-Йолга, неподалеку от Мангупа и Эски-Кермена. Продолговатый водораздел, делящий балку на два рукава, заканчивается крутолобой обомшелой скалой. Две высеченные в ней смежные искусственные пещеры служили нижним этажом постройки, которая возводилась из камня, добытого при выдалбливании пещер. План ее угадывается по следам вырубленной «постели» для кладок, еще заметным на выветрившейся поверхности скалы.
Глубокие гнезда от балок и стропил на скалах под склонами оврага, остатки каменных строений, выемки камня на краях обрывов говорят о том, что центральная постройка — вероятнее всего, жилище самого хозяина — была окружена помещениями для челяди и хозяйственными строениями, хлевами, конюшнями, сараями. Следы тарапана и заросли одичалого винограда свидетельствуют о винодельческой отрасли этого хозяйства.
Если допустить, что личное владение такого средневекового хозяина не выходило за пределы балки, то площадь его составляла, по всей вероятности, 10-12 гектаров земли, пригодной для земледелия. Это обеспечивало прокормление, по крайней мере, 20 человек. Но угодья того же хозяина могли быть и вне усадьбы, там, где и теперь пахотные поля, кстати, местами усеянные средневековой керамикой. Кроме того, был еще и скот.
Судя по габаритам многочисленных прискальных навесов и стойл на территории той же усадьбы, в довольно большом стаде, принадлежавшем ее владельцу, изобиловал мелкий рогатый скот. Кстати, прямо от усадьбы отлого поднималась к югу удобная дорога, следы которой до сих пор сохранились в лесных зарослях. Дорога эта («иол») ведет, что называется, никуда — к обрывам скал между Эски-Керменом и Биюк-Каралезом (Красный Мак). Чисто хозяйственное, скотопрогонное назначение дороги не вызывает сомнений — она шла от населенного места к пастбищу.
Жизненный уровень такого землевладельца средней руки был ненамного выше, чем тех хлебопашцев-общинников, которые приходились ему младшими родичами или в чем-то экономически зависели от него. Дальнейшее обогащение, перерастание его в тимариота — помещика-феодала само по себе могло тянуться долго. Однако в VIII-X вв. в Таврике с непостижимой быстротой появляется целый ряд куда более крупных и по своему времени высокоорганизованных хозяйств возле как бы невесть откуда взявшихся монастырей и замков вполне феодального типа — с оборонительными стенами, донжонами, большими храмами и многочисленными постройками. Таковы Качи-Кальон — монастырь на реке Каче, сосед Мангупа Сюйренская крепость на Бельбеке и связанный с нею пещерный монастырь, замок Сарджик на реке Черной, немало других и, наконец, сам Мангуп.
Рассматривая многие из них с фортификационной и технической стороны, увидим (хотя бы на примере того же Мангупа), что в кладке их стен и башен не менее чем два строительных периода, которые резко различаются рядом хорошо заметных признаков. Например, в более ранних известковый строительный раствор розоватый, с примесью цемянки, в поздних же кладках — серый, приготовленный на чистой извести. Кроме того, ранние стены Мангупа (около VI в.) были сложены из правильно отесанных квадров, а более поздние, либо из бута, либо из относительно крупных камней с прямоугольной и гладкой лицевой стороной, но с других сторон грубо околотых, часто в виде тупых, неправильной формы клиньев, утопленных в забутовке.
Остатки стен раннего Мангупа, Каламиты, Сюйренской крепости, Баклы и некоторых других укреплений можно сопоставить с раннесредневековыми стенами и башнями Херсона. Нетрудно заметить значительное сходство между ними в техническом и фортификационном отношении. Правда, стены Баклы и Каламиты сооружены как будто бы раньше мангупских, а Сюйренской крепости и прочих — несколько позже, однако все эти укрепления в целом почти синхронны, и их выделяют в особую группу свойственные им признаки византийского зодчества. Все они, если не впервые созданы, то перестроены и усилены в период расцвета Византийской империи и ее максимального влияния в Таврике, т. е. в VI-VIII вв. В те времена, когда византийский Херсон еще главенствовал над Таврикой и ее, так называемыми климатами (большими укрепленными поселениями горных районов), крепости, что стояли на путях к Херсону из диких степей и варварских предгорий полуострова, очевидно, могли играть для него роль предмостных укреплений. Вполне возможно, что сооружались или усиливались они при содействии византийских военачальников и даже руками херсонских каменщиков. Наибольший размах этого военного строительства приходился, по-видимому, на VIII — IX вв. — время учреждения в Таврике Херсонской фемы (позже — фемы климатов), призванной подкрепить ставшую шаткой политическую и хозяйственную византинизацию полуострова. Вполне вероятно, что в период устройства фемы ближайшие к Херсону укрепления составляли как бы его свиту.
Сравнивая небольшую группу этих, по существу византийских, крепостей с современными им укреплениями «глубинной» Таврики — в гористых верховьях рек Черной, Бельбека, Качи, Альмы, Салгира, на Южном берегу, мы увидим разительный контраст между теми и другими. Укрепления второй, более многочисленной группы, как правило, мельче, слабее и примитивнее построены. В фортификационном же и техническом отношении даже крупнейшие из них, как, например, Эски-Кермен, сохраняют оригинальные и самобытные черты, которые, быть может, идут от местных таврских и скифских оборонительных сооружений. В них можно наблюдать не только пережитки общинно-родовых военных и технических традиций, но в ряде случаев и преемственность в прямом смысле слова: по археологическим данным, многие из средневековых укреплений Таврики стоят на основаниях древних укрепленных убежищ.
Исключения не составил и Мангуп, где тоже найдены следы обитания поздних тавров. Однако ими не было положено здесь ни одного камня. Это укрепление в своем первоначальном виде (VI-VIII вв.) — продукт довольно высокой для того времени строительной техники.
Хозяева больших укреплений, главенствующих над целыми районами Таврики, разумеется, были важными — по местной мерке — персонами. По-видимому, они ощущали себя хозяевами или, по крайней мере, неограниченными распорядителями территорий, как бы вверенных их попечению неизбежным и естественным ходом вещей. Себя и друг друга хозяева эти именовали «господами» (domini) — на средневеково-латинский манер, или «дука» — по-гречески «владетель», «предводитель». Византийское звание «дука», известное по ряду крымских легенд, приставало, очевидно, к тем из них, чья военная деятельность в Таврике была наиболее активной. Некоторые из них, вероятно, стали со временем византийскими служащими — топархами (правителями) территорий, прилегавших к Херсону и входивших в «фему климатов».
Среди немногих письменных источников, прямо повествующих о крымских делах, имеется такой, как «Житие святого Иоанна Готского»8, епископа приморской и горной Таврики. Иоанн — вполне реальное историческое лицо, видный церковно-политический деятель своего времени. Его «житие», написанное, как полагают специалисты, в X в., рассказывает о людях и событиях 70-х годов VIII столетия — о восстании местного населения против хазар. В нем, хотя и бегло, но с достаточной определенностью, показана политическая роль одного из таких «господ»9.
Господин Дороса
К сожалению, нам придется оставить в стороне увлекательнейшее исследование столь романтического памятника, как это «Житие». Ему посвятили не одну страницу крупнейшие историки-византологи, им и ныне продолжают заниматься ученые, в том числе советские10.
Ограничимся кратким пересказом его содержания. В 80-х годах VIII в. епископ Готской епархии «преподобный» Иоанн, формально подчиненный патриарху константинопольскому, был занят не столько духовными и мирскими делами своей епархии, сколько внешней политикой. Архипастырь сей весьма энергично вмешивался во все, что происходило не только в Таврике, но и далеко за ее пределами. Ярый иконопочитатель, сподвижник старой ханжи и жестокой интриганки императрицы Ирины, возглавлявшей в империи эту политическую и церковную партию, Иоанн играл активную роль в борьбе против иконоборческого правительства. Боролся епископ, в сущности, за независимость от государства церковных и монастырских владений, за ту феодально-теократическую систему социального устройства, которую проповедовала православная церковь. Вокруг него, надо полагать, группировались в Таврике (в первую очередь в Поморье, где жил он сам) беженцы-иконопочитатели — монахи и миряне различных рангов и социального положения. Рядом с героем «Жития» предстает и фигура некоего, в источнике безымянного, но явно стоявшего с епископом наравне «господина» Дороса — важного укрепленного и населенного пункта, захваченного хазарами около 787 г.
В VIII-IX вв. православные иконопочитательские монастыри, как грибы, начинаются высыпать по всей Таврике. Под их не только идейным, но и социально-экономическим влиянием византийско-феодальные порядки постепенно берут верх над и без того близкими к разложению общинно-родовыми отношениями коренного населения Крыма. Среди социальных его верхов укореняются византийские титулы, звания, должности, вероятно, внедряемые администрацией Херсона. Однако в целом влияние последнего в тот момент явно идет на убыль. «Житие» Иоанна Готского ни словом не упоминает о Херсоне, но зато много говорит о хазарах и целиком посвящено связанному с ними главному эпизоду жизни архипастыря. В источнике этом выпукло освещены взаимоотношения возглавленной Иоанном местной иконопочитательской группировки с хазарами.
Сложные отношения между Византийской империей и Хазарским каганатом, с одной стороны обострялись торговым и политическим соперничеством, еще недавно приводившим к прямым вооруженным столкновениям, а с другой — смягчались союзничеством в борьбе с общим врагом — арабами. Этим и объясняется тогдашнее своего рода «двоевластие» в Таврике: существует какая-то, пусть в это время и слабая, византийская администрация, а рядом (в самом Херсоне) — хазарское наместничество, власть вполне реальная, ибо почти весь полуостров — в хазарских руках.
Хазары не причинили никаких разрушений Херсону и не нашли нужным полностью забрать его себе. В силу указанных причин горный и приморский районы полуострова долго оставались как бы беспризорными, что, кстати, лишь содействовало социальному (т. е. феодальному) развитию Таврики, к тому времени основательно «повзрослевшей». Отсюда активность и свобода действий «преподобного», свивавшего в Таврике гнездо сопротивления императору-иконоборцу, отсюда и появление в ней таких персон, как «господин Дороса», который, как и епископ, выступает «со своим народом». Очевидно, это был выдвинувшийся среди других господ владетель важного укрепления и немалого земельного надела. И как раз в это время хазары, давно уже владевшие степным и предгорным Крымом, предпринимают, наконец, освоение совсем, так сказать отбившейся от рук горной Таврики. Первой жертвой их агрессии, естественно, становится главный ее город — Дорос.
Строго говоря, нет прямых сведений о том, где стоял этот Дорос. Первоначальное предположение о том, что он мог находиться на Южнобережье11, отпадает, поскольку епископ и «господин» действуют в «Житии» самостоятельно, каждый «со своим народом». По другим источникам (надгробным надписям из Партенита) ясно, что резиденция владетельного и только потому столь сильного епископа находилась именно там, в им же построенном монастыре св. Апостолов на Аю-Даге. Другого столь же крупного владения на побережье не было, а двух хозяев на одной полосе Поморья, разумеется, быть не могло.
Было выдвинуто и два других предположения — о локализации Дороса в центре юго-западной Таврики: первое — на Эски-Кермене, второе — на Мангупе12. Если смотреть на проблему широко — в масштабе истории всей Византии и сопредельных с нею стран, — эти предположения равнозначны: смысл событий останется тем же, оба городища в то время существовали, а расстояние от Эски-Кермена до Мангупа всего 5-6 км. Однако, в масштабе истории средневекового Крыма это не одно и то же: характер памятников не одинаков, и, прежде всего, различна их, так сказать, социальная топография и структура.
На основании всего, что известно об Эски-Кермене в результате его археологического исследования (письменные источники о нем безмолвствуют), можно сказать, что он был хорошо укрепленной деревней с выселками в ближайшей округе. По обычаю времени, довольно большая территория внутри стен Эски-Кермена оставалась незастроенной — как резерв площади и в качестве убежища для жителей долины на случай военной опасности. Когда же были разрушены его стены (об этом ниже), городище окончательно приобрело монастырско-деревенский характер. А рядом, на отдельной скале, появился феодальный замок (позднее названный Кыз-Куле) — гнездо какого-то правителя, то ли назначенного сюда по распоряжению византийской администрации, то ли самостоятельно обосновавшегося в этих местах.
Иное дело Мангуп: его укрепления с самого начала представляли собой сильную, недоступную, стратегически выгодную позицию, и занял эту позицию властитель несомненно единоличный, близкий византийским кругам, признаваемый ими, персона — для здешних мест — немаловажная. Оборонительные сооружения Мангупа, построенные на византийский манер и, скорее всего херсонским строителем, охватывали широкую площадь, видимо, в расчете на большое будущее. Равных им в Таврике не было, и их не могли не заметить хазары. С покорения этой крепости, естественнее всего, и началось присвоение горной Таврики. Отсюда само собой вытекает, что Мангуп и захваченный хазарами Дорос — одно и то же.
Если не считать территорию, прилегавшую непосредственно к Херсону, то перед хазарами было как бы две Таврики. На северной стороне Тавра лежала гористая и просторная «область климатов», многочисленные городища которой далеко не однородны: одни представляли собой окруженные стенами полугорода, другие — вполне феодальные замки и монастыри; известны и укрепленные усадьбы («кастеллы»), а также подчиненные большим крепостям мелкие дозорные крепостцы и придорожные блокпосты.
Многие из них принадлежат к так называемым «пещерным городам». Это разнохарактерные и разновременные памятники, наделенные общим для них признаком — обилием искусственных пещер (хозяйственных, жилых, культовых). «Пещерные города» известны во многих местах восточной и западной Европы; ближайшие к Крыму — в Закавказье — датируются V-VI вв. Однако крымские памятники этого рода более походят не на грузинские или армянские, а на сицилийские и малоазийские. Это позволяет предположительно связывать их с теми же иконопочитателями — восточно-византийскими греками, эмигрировавшими в VIII-IX вв. в Крым и Сицилию. Однако, как ни характерны «пещерные города» для юго-западной Таврики (точнее, для предгорий), говоря о деятельности хазар, нужно подчеркнуть другую особенность этого района: мы не знаем здесь для того времени ни одного населенного пункта, который не был бы так или иначе укрепленным. Это и сделало «область климатов» необычайно трудной для покорения и освоения.
По южную (приморскую) сторону Тавра обстановка была несколько иной. Тут теснились чуть ли не сплошные монастыри феодального типа — со стенами и башнями. Их окружали преимущественно открытые, т. е. незащищенные, рыбацкие, земледельческие, скотоводческие поселения в той или иной мере зависимые от церковных властей. Лишь отдельные поселения можно назвать, по-видимому, относительно «свободными», если судить по окружающим их крепостным оградам.
Кроме больших крепостей, Поморье было усеяно немалым количеством дочерних «крепостишек» («кастропуло»)13. Если все укрепления Южнобережья, как показали археологические разведки и раскопки, возникли не разом, то их постепенное возведение на протяжении относительно недолгого времени диктовалось, надо полагать, задачей удержания всей береговой полосы в одних руках; взаимосвязанность южнобережных крепостей и визуально и по существу не вызывает сомнений.
Поморье, собственно «Готия», местность, когда-то населенная готами (бывшая «страна Дори»), была ядром Готской епархии, которой управлял епископ Иоанн. Она формально подчинялась (а на деле могла и не подчиняться) Константинополю. Епископ «Готии» обладал, судя по тому, как вел он себя в соприкосновениях с хазарами, всей полнотой не только церковной, но и гражданской и военной власти. Кроме того, духовное влияние Иоанна распространялось и дальше, в загорную Таврику, большая часть которой — климаты — входила в Готскую епархию.
Не приводило ли это к развитию теократических тенденций в Таврике, и не простирались ли властительские притязания епископа Готии на всю «область климатов»‘ Обстановка, несомненно, тому благоприятствовала, ибо к восприятию теократии население Таврики было психологически и идеологически подготовлено (не могло быть иначе при густой сети владетельных монастырей и неисчислимом множестве храмов). Если бы не двойственность взаимоотношений с хазарами, это бы и произошло: в Таврике могла сложиться такая же социально политическая ситуация и с теми же последствиями, как, например, в Черногории, где в вековой борьбе с турками князь-епископ совместил в себе духовного пастыря, светского правителя и военного вождя.
Вторжение хазар в Таврику представляло собой явную агрессию, что, вполне естественно, вызвало возмущение и отпор со стороны ее населения (но отнюдь не византийских властей, которым был безразличен, если даже не на руку, разгром гнезда оппозиционеров). Епископ использовал этот момент, чтобы поднять антихазарское восстание. Он подбил на участие в нем «господина» Дороса, выступил и сам «со своими людьми» против союзников иконоборческого правительства.
Карта антихазарского восстания 787 г. (по «Житию» Иоанна Готского и данным историко-археологических исследований)
1 — хазары; 2 — повстанческие силы; 3 — укрепленные города; 4 — укрепленные монастыри; 5 — византийские укрепления; 6 — клисуры (укрепленные горные проходы).
Победа иконопочитателей в том же году на VII Вселенском соборе и смена государственной власти (ее взяла в свои руки императрица Ирина) изменили ситуацию: дружба с хазарами была нужна и новому — иконопочитательскому правительству. Епископ Иоанн — ставленник и приверженец этого правительства — тотчас прекратил борьбу вместе с «господином Дороса», несмотря на значительные успехи — овладение клисурами на горных перевалах, Таврика была предана ее вождями и отдана хазарам.
В этой истории заслуживает внимания не столько вероломство и политическая «гибкость» Иоанна, оплаченные кровью рядовых повстанцев Таврики (явление, не раз повторявшееся в истории и привычное для историков), сколько роль «господина Дороса». Если «преподобному» для соблюдения приличий пришлось немного посидеть в хазарской темнице, а оттуда совершить удачный «побег», то «господин» совсем не пострадал и, судя по всему, остался на своем высоком месте. Он или его преемник даже выиграли, ибо хазары невольно избавили их от стеснительного церковного попечительства в светских делах.
В IX в., в период ослабления хазар и нового усиления Византии, вся юго-западная Таврика окончательно слилась с маленькой областью Херсона и стала «фемой климатов». Кто ею управлял? Издали (в лучшем случае из Херсона) — византийский стратег, назначавшийся императором; известны имена двух-трех из них. В письменных источниках и легендах Крыма то и дело мелькают титулы местной фемной знати: демогеронты (выборные старейшины), протосы («первые» — нечто вроде сельских старост), протевоны («первенствующие», подобие председателей совета старейшин), дуки (по преимуществу — военачальники, но и правители прочих дел на каких-то подведомственных им территориях), топархи (правители относительно обширных областей, осуществлявшие одновременно административную и военную власть), архонты (старейшие военачальники и менее зависимые правители тех или иных территорий). На современном уровне изученности крымского средневековья это, пожалуй, и все, что можно сказать наверняка. Многое остается невыясненным. Например, из какой среды и каким путем выдвигались эти начальствующие лица, в какой степени звания в захолустной Таврике соответствовали аналогичным (одноименным) в центральных районах империи, что представляли собой известные здесь по преданиям архонты, архонтики и т. д.
Впрочем, это касается не только Таврики, но и других областей Византии. «Ромейская» модель феодализма, осложненная античными реминисценциями, всевозможными посторонними влияниями, весьма существенно отличалась от западноевропейской. Феодальные отношения и феодальная иерархия, выражавшиеся в должностных званиях и титулах византийской знати, были крайне сложны, запутанны и не всегда понятны самим их носителям. Каждая смена династии или даже отдельного лица на императорском троне вызывала изобретение новых званий, которыми надо было выделять и награждать своих сторонников и сподвижников. Особенно же усилилось это чисто византийское хитросплетение реальных и мнимых отличий в период развала империи на три независимых государства: что высоко ценилось в Трапезунде, — иначе воспринималось в Никее или «совсем не звучало» в Эпире.
К тому, что сказано о социальной верхушке Таврики, можно добавить следующее: здесь мы не встречаем лиц, удостоенных аристократического звания патрикия — основного для знатного византийца, да и просто придворного звания. Вероятно, все феодориты были в глазах византийца плебеи, и хотя в самом Константинополе ряды высшей аристократии нередко пополнялись выходцами из простонародья, здесь, видимо, ни у кого не было шанса или не хватало осознанного стремления выбиться так далеко за пределы своего круга и подняться над ним на такую высоту. Верхушечный слой населения Таврики состоял в основном из тех землевладельцев, которых мы позволим себе назвать по-византийски динатами, т. е. «кулаками». Они-то, придавив родовую общину, перерождались в помещиков.
В конце концов, в лексикон Таврики вошел родственный по значению, но более поздний византийский термин «тимариот» (от «тимар» — имение). Из среды наиболее зажиточных тимариотов, очевидно, и выдвигались высокопоставленные лица этой страны.
Пожалуй, наиболее ясно практическое значение для фемы климатов терминов «архонт» и «топарх». Кто из них выше и, так сказать, важнее? Думается, что архонт фемы. Вероятно, он был единственной столь важной фигурой на всю Таврику. Вспомним, что в свое время «архонтами Руси» звались в Византии киевские великие князья, и долго, ценою больших усилий, добивались они признания за собой более высокого достоинства. А владетельные русские князья помельче (например, тмутороканский князь) еще и в XI-XII вв. довольствовались этим титулом.
В XII в., после того как в первый раз пал Константинополь и развалилась на три части империя, Крым попал в сферу политического влияния Трапезунда. Многое тогда изменилось в Херсоне и во всей Таврике, в частности мы не встречаем больше стратега: его функции выполняет некий «архонт климатов». Он возглавляет эту область, обладая важными полномочиями, на нем лежит, например, обязанность сбора «ежегодных взносов» — какого-то государственного налога, регулярно вносимого в императорскую казну.
Восстановление в Константинополе императорского трона, видимо, не повлекло за собой реставрации всех прежних должностей и оставило на своем месте архонта, более самостоятельного, чем стратег. Однако и ранее существовал (наряду со стратегом) «правитель климатов». Он располагал, видимо, меньшими полномочиями и звался топархом. Не безразлична для нас эта персона: мы собираемся познакомить читателя с одним из топархов в таких критических обстоятельствах, когда сей слуга империи оказался вдруг никому не подотчетен, был принужден к самостоятельным действиям и пустился на поиски сильного благожелательного властителя, дабы сделаться его вассалом. Речь пойдет об очень спорной фигуре, но, быть может, именно с ее помощью удастся нам объяснить появление в Таврике архонта — лица, равнозначного владетельному князю, становящегося затем и во всех отношениях князем.
Записка топарха
В начале XIX в. в числе свезенных во Францию трофеев Бонапарта были средневековые документы из итальянских хранилищ. Внимание известного ученого Газе привлекла одна рукопись, названная «Запиской готского (а по другим версиям, греческого) топарха», теперь же именуемая просто «Запиской топарха». Газе опубликовал ее на языке оригинала (греческом) и параллельно по-французски. Появились затем и другие — немецкий и, наконец, русский переводы14. С тех пор этим источником не перестают интересоваться, его не обошел ни один историк или археолог, занимающийся Византией и Крымом X в. К несчастью, сам документ бесследно затерялся. Невозможность его изучения в подлиннике становится сущей бедой для каждого, кто пробует на него опереться.
«Записка» представляет собой довольно беспорядочные заметки на полях молитвенника, сделанные, вероятно, наспех где-то в пути. Она смахивает на черновой набросок отчета правителя (топарха) какой-го византийской (увы! неназванной) области о бедах, постигших его и вверенную ему территорию. В ней говорится о сокрушительном нападении там же проживавших «варваров», внезапно возмутившихся, а до того доброжелательных и «кротких», о разрушении ими крепости, а также об оборонительных мерах, которые предпринял топарх. Главное же в записке — описание опасного, даже рискованного путешествия правителя к некоему могущественному лицу, «властвовавшему к северу от Дуная», к которому он обратился с просьбой о покровительстве.
Событиями, важнейшими для Таврики, для Византийского Херсона и самой Византии, были в X в. морские походы Руси на Царьград (Константинополь) и Корсунь (Херсон). Их результат — не раз нарушенные, но и не раз возобновленные договорные отношения между двумя государствами. Торговые и политические связи с Русью отвечали интересам Византии, искавшей в Северном Причерноморье новых торговых рынков и новых путей на восток — взамен старых морских дорог, закрытых перед ней арабами. Все оживление Херсона, новый расцвет его как торгового центра, наступивший в X в., зависели от русско-византийской торговли и политики.
Общение русичей с населением византийского Херсона и климатов могло быть достаточно тесным, раз существовали и действовали подобные договоры. Всего ярче свидетельствует об этом проникновение на Русь христианства. Известен и ряд других фактов, в том числе археологических: русские вещи в Корсуне, а особенно византийские на Руси в сумме дают объективное подтверждение выводов, вытекающих из письменных источников.
Десятый век в истории нашей страны был веком завязывания и упрочения русско-византийских отношений, сыгравших огромную и плодотворную роль в развитии русской культуры и государственности. Есть основания полагать, что тогда же рядом с Херсоном и в нем самом сложились такие обстоятельства, которые в конце века (987 г.) пособили киевскому князю Владимиру покорить этот северопричерноморский форпост Византии. Ценой возвращения ей Херсона удалось ему добиться родства с императором «ромеев», а заодно и всеевропейского признания Руси одним из значительнейших государств своего времени. Для этого надобно было и для этого стоило девять месяцев топтаться у стен Херсона, сплетая узлы политических связей под прикрытием показных военных действий. Кто при этом поил и кормил его войско, надолго оторванное от далеких баз снабжения? Не такое уж большое, да к тому же потрепанное в военных действиях на Балканах, оно как-никак было занято осадой Корсуня. Разве смогло бы оно еще и рыскать по юго-западному Крыму, отнимая продовольствие и фураж у местного населения? Не было ли у Киева (как полагал виднейший исследователь древней Руси Б. Д. Греков) ранее созданной прочной опоры в Таврике и самом Херсоне?15
Успехи Владимира под Корсунем, несомненно, многим обязаны тому времени, когда меч Святослава «отмстил неразумным хазарам», когда русское оружие повергло в трепет печенегов и брало верх на Балканах — в войнах с Болгарским царством, в крупных столкновениях с византийскими силами. Русские победы на Балканах были настолько велики, что в течение некоторою времени большая территория к северу от Дуная фактически подчинялась киевскому князю. После одержанной в 965 г. Святославом решительней победы над хазарами обломки разбитого каганата кое-где, в частности в Крыму, по-видимому, еще некоторое время существовали. Что, кроме лютой вражды ко всему русскому и византийскому, могли ощущать эти недавно дружественные Византии «варвары» при виде того, как Византия заключает союз с их главным врагом — Русью. Херсон, в то время хорошо укрепленный и всецело занятый своей судьбой, был им уже не но зубам. Зато практически беззащитная земледельческая и пастушеская «фема климатов» в любую минуту могла испытать на себе запоздалую ярость хазар.
Возможно, об этом и рассказывает «Записка топарха» — загадочный исторический источник, связь которого с Крымом одни исследователи горячо отрицают, а другие доказывают не менее настойчиво и убедительно.
Не будем пытаться анализировать «Записку», ибо мы заведомо не в состоянии ничего прибавить к тому, что сделано в этом направлении выдающимися специалистами. Не можем дать здесь и реферат всей порожденной «Запиской» научной литературы. Ограничимся кратчайшим освещением двух основных точек зрения, занятых в этом вопросе наиболее авторитетными из дореволюционных и современных исследователей.
По мнению одной группы ученых, «Записка топарха» не имеет отношения к Крыму16. В 50-х годах эту точку зрения отстаивал М. В. Левченко. Он считал, что «Записка» была составлена греческим топархом одной из балканских провинций, который обратился за помощью к болгарскому царю с просьбой усмирить балканских славян, взбунтовавшихся против Византии в период войн Святослава с болгарами.
Согласно другому предположению, в пользу которого высказывались многие видные авторы, «Записка» — документ, связанный с Крымом17. Однако существует несколько вариантов этой точки зрения. В последнее время Г. Г. Литаврин рассматривал ее как рассказ о событиях, происходивших в Крыму в конце X в., а покровителем топарха считал князя Владимира18.
Если мнение о связи «Записки» с Крымом правомерно, то источник этот объясняет многое. В частности, становится ясно, что испрошенный топархом протекторат грозного Святослава (или не менее грозного Владимира), «властвующего к северу от Дуная», мог разом избавить топарха и подвластные ему климаты от агрессивных действий «варваров». Мы думаем, вслед за многими нашими предшественниками, что эти «варвары» — недобитые в Крыму хазары (по Литаврину же они, скорее всего, печенеги).
Среди сторонников крымской локализации «Записки» нет единого мнения по поводу ее датировки, а в связи с этим возникают различные мнения о том, кто были «варвары», враждовавшие с топархом крымских климатов (Б. Д. Греков назвал его «князьком»), и кем мог быть могущественный северный повелитель, оказавший ему покровительство.
Анализ «Записки» еще не исчерпан, но, взвешивая и сопоставляя все сказанное, отметая положения, не выдержавшие критики, надо признать наиболее убедительным и понятным толкованием ее как документа, отражающего события второй половины X в. в Крыму. Именно в это время русское оружие и сами русичи, несомненно, были популярными в Таврике и, кстати, тем сильнее, чем меньше притязаний выказывала Русь на ее территорию. Очевидно, это (а что же еще?) обеспечило Владимиру возможность безбедной осады Корсуня, а позднее содействовало и безболезненному вокняжению другого русского князя в соседней с Таврикой Тмуторокани, в тот момент как бы «бесхозной».
Не потому ли в XI в. такая же удача сопутствовала в Крыму и тезке Владимира киевского — князю Владимиру Ярославичу? Он тоже брал Корсунь, и с той же целью — породниться с императором Византии через брата, которому, будучи сам женат, добыл в супруги византийскую царевну19.
Нельзя ли попытаться приложить сведения, почерпнутые из «Записки топарха», к конкретным фактам, вскрываемым археологическими разведками и раскопками?
Н. И. Репников, изучавший Эски-Кермен в конце 30-х годов, полагал, что ему удалось (и в этом есть доля вероятия) локализовать события, изложенные в «Записке», именно там, где он вел раскопки20. Его предположения основывались на археолого-топографических сопоставлениях: местоположение Эски-Кермена и Кыз-Куле подходит к укреплениям, которые описаны топархом. Относительная же хронология эски-керменских укреплений и более поздней крепости Кыз-Куле соответствует последовательности, в какой топарх восстанавливал разоренное «варварами» укрепление и строил рядом с ним новое. Разрушение Эски-Кермена, как и крепости в «Записке топарха», Н. И. Репников приурочивал к X в.
Другой исследователь Эски-Кермена — Е. В. Веймарн относит разрушение стен крепости к VII-VIII вв. и приписывает его тем хазарам, что сражались с повстанцами епископа Иоанна.
Надо, конечно, признать и спорность этих дат и всю гипотетичность связи «Записки топарха» именно с Эски-Керменом. Тем не менее, мы считаем вполне вероятным предположение Н. И. Репникова и Е. В. Веймарна о том, что первым центром климатов был Эски-Кермен, а к Мангупу эта роль перешла после гибели последнего21. Замок же Кыз-Куле ни в коей мере не мог послужить заменой Эски-Кермена и стал второстепенной резиденцией мангупского владетеля или подвластного ему князька.
Небезынтересно отметить, что в одной из пещерных церквей — близ замка Кыз-Куле над ограбленными усыпальницами каких-то знатных особ — есть семейный групповой портрет донаторов (дарителей) этого храма. В качестве главы семьи изображен бородатый мужчина в богатой одежде, в шапке с алым верхом и меховой опушкой. Изображение это напоминает портрет князя Ярослава в притворе Спасо-Нередицкой церкви XII в. в Новгороде. Надеть такую шапку в те времена не всякому позволялось: на это надо было иметь реальные основания и, так сказать, моральное право. Нарядившись «не по чину», можно было лишь стать всеобщим посмешищем.
Наличие осеняющего фамильную усыпальницу портрета, на котором, кроме вельможной семьи, есть изображение и ее святых покровителей (вот уж истинно княжеская замашка!), наводит на мысль, что уже с XII в. фигура знатного лица, подвизающегося в ранге князя, для таврических климатов была не новой. По другим источникам, в это самое время в климатах появляется архонт — фигура также вполне княжеского достоинства. Придерживаясь изложенной выше гипотезы, позволительно спросить: не преемник ли он того топарха, которого Святослав (или Владимир) не только взял под свое покровительство, но и возвысил, «одарив» дополнительными владениями — соседними климатам землями, отнятыми у побитых варваров (т. е. хазар)?..
В конце XIV в. на Мангупе дважды промелькнут в найденных там строительных надписях некие «сотники»22. Сотник — чин военный, но такой ли уж значительный? Однако эти лица возводят новые укрепления и вряд ли по поручению византийских властей, которым было в ту пору не до климатов. А коль скоро действуют они по своей инициативе, значит, они правители: имена простых исполнителей едва ли подходят для подобных надписей.
После этих, довольно загадочных, лиц все остальные правители Мангупа именуют себя «владетелями». Поскольку власти полуживого Херсона не могли и думать о контроле над климатами, правитель Мангупа стал их действительным, практически полным хозяином и потому выступал от своего, а не от чужого имени. За ним стояли традиция и авторитет его предшественников — слуг некогда всесильной империи, в его руках оказалась одна из сильнейших крепостей Европы; судя же по великолепию построек Мангупа, имелись у него и деньги.
Сильным орудием власти были для владетеля Мангупа обширные родственные связи с вельможными и даже императорскими домами, которыми он успел обзавестись. Это, как ничто иное, делало и его вельможей, ставило в то исключительное положение, в каком находим мы его в XV в.
Крушение Византийской империи нарушило планомерное приближение Руси к Черному морю и его торговым путям, уже тогда необходимым будущей России. Становление централизованного и абсолютистского Московского государства, естественно, сопровождалось поиском новых русско-причерноморских связей, в которых нуждалась и средневековая Таврика. Именно поэтому в XV в. мангупский князь Исайко собирался выдать дочь за московского княжича — сына и наследника великого князя Ивана III23.
Знатность владетелей Мангупа, их родство с константинопольскими Палеологами, трапезундскими Комнинами и Гаврасами, молдавскими господарями Душанами, с одной стороны, а с другой, отнюдь не пустые, а подкрепленные «ромейскими» родственными связями намерения Москвы сделаться «третьим Римом», — все это стало звеньями одной политической цепи. Великий замысел о проникновении Руси в Северное Причерноморье опирался на стародавние и традиционные крымско-русские связи, начало которым положил издревле проторенный путь «из варяг в греки».
Брошенный нами беглый взгляд на исторические «дали» Мангупа, разумеется, проник в них не настолько глубоко, чтобы затронуть все проблемы его истории. К тому же, говоря о них, нельзя, к сожалению, обойтись без всяческих «если», «возможно», «вероятно»… А между тем социально-экономическая подоплека, да и сама механика формирования города Феодоро, превращения его в столицу самостоятельного княжества необычайно интересны и важны для истории всего юга нашей страны.
С уверенностью можно сказать, что прошлое этого небольшого государства, его разнообразные и трудноразрешимые проблемы еще долго будут занимать ученых, в том числе и главная из них — проблема крупнейшего в Крыму «пещерного» города, к которому мы и переходим.
Город на Мангупе
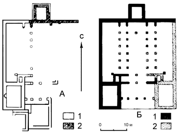
Кратчайшая, хотя и «кручайшая» тропа на Мангуп идет по оврагу Гамам-Дере. Минут через сорок после начала подъема она подходит к хорошо сохранившейся башне, увитой зеленым плющом. От нее тропа круто поднимается на правый склон оврага вдоль оборонительной стены, пересекающей его верховье. Через пролом, где по предположениям археологов прежде могла быть калитка, она входит на территорию города. Слева — искусственные пещеры, вырубленные в скале, справа — заросли деревьев и кустарника. В конце тропы — естественный грот, из которого вытекает родник с хорошей питьевой водой. От него можно по другой, ближайшей слева, тропе подняться к югу, пересечь дорогу, огибающую верховья трех оврагов, и повернуть влево, к топографическому знаку. Отсюда лучше всего и начать осмотр Мангупа.
От топографического знака хорошо просматривается все плато, вытянутое с востока на запад. Ограничено оно совершенно неприступными, местами нависающими обрывами скал. На плато, как уже говорилось, можно проникнуть и по двум другим оврагам, по которым проходили колесные дороги. Лучшая из них поднималась по восточному (Капу-Дере) и подводила к главным городским воротам. Кроме того, на юго-восточном краю плато есть потайной спуск вниз — к пещерному монастырю и на главную дорогу, что выходит из восточного оврага на южный склон горы.
С севера верховья трех оврагов заслонены руинами высоких и толстых стен с башнями. В нижней части Табана-Дере имеются следы передовой, тоже мощной стены, а в последнее время открыты остатки стены и наверху — на левом краю оврага. Еще одна крепостная стена тянется от западных ворот и круглой башни к обрыву.
Некогда все мысы Мангупа входили в территорию нижнего города. Позднее он расширился, заняв часть Кожевенного оврага, и разделился на две части. Более возвышенная прилегала к верхнему городу (цитадели) и захватывала верховье Гамам-Дере с его родником. Очевидно, эта часть Феодоро стала привилегированной — на ней восстановлена большая базилика св. Константина и Елены, которая ранее стояла посреди нижнего города, а теперь оказалась у ворот в новой стене; появился и княжеский дворец. Верховья Табана-Дере, а также «буруны» — Чуфут-Чоарган и Чамны — превратились в ремесленный район. На Сосновом же мысу до конца существования города оставался пустырь, своего рода запасная территория.
План Мангупа.
А — Табан-Дере; Б — Гамам-Дере; В — Капу-Дере; I — Чамны-Бурун; II — Чуфут-Чоарган-Бурун; III — Елли-Бурун; IV — Тышкли-Бурун.
Пустыри, расположенные за пределами оборонительных стен Чуфут-Чоарган- и Чамны-Бурунов, в момент вражеской опасности, очевидно, тоже использовались. На них укрывались жители расположенных вблизи Мангупа селений вместе со своим скотом и движимым имуществом. В мирное время на пустырях этих, по-видимому, паслись лошади и другие домашние животные.
Ранний Мангуп (V-VI вв.) охватывал лишь территорию верхнего города. Доступ в него преграждают величественные руины цитадели на Дырявом мысу.
Цитадель
Из построек Мангупа полнее других сохранилась цитадель. Она состоит из оборонительной стены, как бы отсекающей Дырявый мыс с напольной стороны, ворот, перекрытых коробовым сводом, и двухэтажного донжона, расположенного посреди стены. Когда впервые была возведена крепость, этот «верхний замок», пока установить не удалось: скорее всего — в период раннего средневековья, гораздо раньше остальной части города. Когда город разросся, это первичное укрепление стало играть роль его цитадели. В X в. она перестраивается; к этому времени и относится все, что мы видим, тогда как остатки более ранних сооружений можно обнаружить лишь путем раскопок. Верхний этаж донжона был жилым, нижний служил, вероятно, своего рода гридницей, еще ниже — полуподвал, использовавшийся, видимо, в качестве арсенала или склада, а позднее как тюрьма.
Забегая вперед, выскажем предположение, что в период господства турок именно в этой тюрьме и томились наиболее важные пленники, захваченные татарами и турками при опустошительных набегах на русские, украинские и литовские земли. Русский историк Н. М. Карамзин писал, что в 1569 г. на Мангупе был заключен в темницу московский посол Афанасий Нагой. С 1572 по 1577 г. здесь томился в плену воевода Василий Грязной24. Внешний фасад башни, выдвинутый вперед, не имел окон — лишь узкие смотровые бойницы. Все это придавало зданию угрюмый и неприступный вид. Внутренний фасад — совершенно иной. С этой стороны постройка носила до сих пор не утраченный дворцовый характер. Посредине расположен богато украшенный широкий вход, по сторонам и на втором этаже — широкие окна, обрамленные затейливыми резными наличниками. Не исключена возможность, что здесь и была основная резиденция правителя Феодоро.
От времени цитадель постепенно разрушается: и донжон и стены сильно пострадали как от естественных причин, так и от небрежности многочисленных посетителей. Но и сейчас эти развалины еще поражают своей величественностью.
В известной работе А. Л. Бертье-Делагарда «Феодоро и Каламита», на которую мы уже ссылались, высказана мысль о том, что стены и донжон («оборонительная казарма, редюит») построены турками; приведен и целый ряд соображений в пользу этого мнения. Однако по новым археологическим данным выходит, что турки лишь местами переделали использованную ими цитадель, ничего почти не изменив в ее архитектуре. Вторичное же использование христианских надгробных плит для вырезывания, на их обороте оконных и дверных наличников (главный аргумент в пользу турецкой принадлежности постройки) случалось и в дотурецкие времена. Кроме того, резная «изнанка» наличников могла принадлежать не только надгробиям. Ведь совпадение орнаментов на могильных плитах и в архитектурных деталях — не редкость.
Напротив ворот цитадели (внутри нее) расположены остатки октагона — небольшой восьмигранной церкви, построенной в VIII в. Вероятно, это была княжеская капелла. Сложена она из крупных, прямоугольных в сечении, искусно отесанных блоков.
По всему восточному обрыву Дырявого мыса тянутся многочисленные пещерные сооружения, из которых хорошо видна дорога к главным воротам города, идущая под обрывами. Большинство пещер вырублено в раннесредневековое время. Служили они в качестве казематов и устроены на самом обрыве, чтобы удобнее было поражать неприятеля сверху, в случае его приближения по дороге. Такие же пещерные укрытия есть и на западном краю мыса, и висят они над тем отрезком колесного пути, который подводил к главным воротам.
Особенностью этих боевых сооружений, типичных для юго-западного Крыма, была приспособленность их как для целей войны так и для хозяйственного использования в мирное время здесь хранились, по-видимому, всевозможные продукты, хозяйственный инвентарь. Об этом красноречиво свидетельствуют вырубки для установки деревянных полок на стенах пещер и углубления на полу для днищ пифосов, в которых можно было хранить жидкие и сыпучие продукты (вино, масло, зерно, муку). В некоторых казематах содержались и животные, на это указывают высеченные у стен каменные разной высоты корыта (ясли, кормушки) с петлями для привязывания лошадей, а также мелкого и крупного рогатого скота.
В средней часта восточного обрыва, прямо в цепи боевых казематов, некогда соединенных висячими галереями, балконами, лесенками, была пещерная церковь. В восточной, закругленной стороне ее (абсиде) находился алтарь. Это церковь защитников цитадели: в их глазах она как бы усиливала оборону Дырявого мыса присутствием божества или того святого, которому посвящалась.
На самом конце Дырявого мыса стояла дозорная башня, контролировавшая подступы к Мангупу со стороны Бельбекской долины (следы ее стен еще кое-где видны). Перед башней было сооружено помещение, служившее когда-то казармой. Нижняя его часть вырублена в скале, верхняя, сложенная из камня, не сохранилась. По вырубкам в скале можно представить характер помещения перед башней и самой башни. Под основание последней вела дверь, а за ней лестница, по которой спускались в довольно обширную, неправильную в плане искусственную пещеру. Западная и восточная стены ее разрушились, и образовалось сквозное отверстие, хорошо видимое снизу, при подъезде к Мангупу с севера.
По краю скалы, нависшей над Капу-Дере, из пещеры ведут еще ниже две лестницы. Одна, правая, приводит на узкую, длинную площадку — как бы балкон, который нависает над дорогой, другая — в обширное пещерное помещение. Это подземная тюрьма (может быть, «гауптвахта»). Она состоит из зала с истертым до блеска подпорным столбом посередине — местом наказания, допросов, пыток. Одиночные камеры вырублены в северной и восточной сторонах пещерного зала. Дверь в его южной стене ведет во второе помещение тюрьмы. Здесь, очевидно, дожидалась очереди смена стражи, которая тем временем наблюдала за заключенными.
На всей территории цитадели в неровностях грунта и местами выступающих из земли кладках угадываются какие-то строения, тесно заполнявшие пространство отгороженное стеной. У южной стороны фасада донжона в густой заросли видны кладки большого здания, сложенного из хорошо отесанных камней, в южном отрезке стены, между донжоном и обрывом, — следы потайной калитки, на случай осады цитадели25, а у северного обрыва — глубокий колодец, снабжавший ее водой. Заполнение колодца землей, камнями и мусором происходило в XV-XVI вв., т. е. при турках; пока что не уда лось установить, чем это было вызвано26.
У подножия цитадели находятся руины восточных ворот. Под более поздней кладкой из мелких камней в западном откосе ворот видна прилегавшая к нему часть стены. Сложена она из тщательно пригнанных друг к другу прямоугольных блоков. Кладка эта (явно первого строительного периода) может быть отнесена к VI в.
Мартин Броневский, посетивший Мангуп в конце XVI в., застал главные ворота еще в полном порядке и даже видел какую-то надпись над ними, высеченную на каменной плите. По его словам, ворота были украшены мрамором27.
Вдоль дороги, вырубленной в скале (справа от нее), высится хорошо сохранившаяся оборонительная стена, сложенная на известковом растворе из разнокалиберных, полуобработанных камней. Стена эта, несомненно, относится к позднему периоду существования города (не ранее X в.), но под нею сохранились несколько рядов значительно более ранней кладки из крупных квадровых блоков. В стене имеется вход в развалившуюся башню, которая в свое время охраняла одно из относительно уязвимых мест на подступах к городу из оврага Капу-Дере.

Висячая лестница на мысе Тышкли-Бурун.
Перед воротами на Дырявом мысу до расширения города находилось раннесредневековое кладбище28. Раскопками вскрыты могилы, вырубленные в скале и некогда перекрытые каменными плитами. В 8 м к югу от стены, у обрыва, — наскальные «постели», рисующие контуры алтарной части церкви. От постройки не сохранилось ни одного камня, но на поверхности скалы ясно виден план здания.
С юго-запада к церкви примыкал большой высеченный в скале склеп, в который можно спуститься по каменным ступенькам. Датируется он примерно X в.
На расстоянии 100 м от цитадели, у самого обрыва плато, находится площадка. В южной стороне ее вход в двухкамерную пещеру. Это остатки большой раннесредневековой и, быть может, фамильной усыпальницы, датируемой VI-VII вв.
Второй и тоже ранний церковно-погребальный комплекс расположен невдалеке на краю обрыва, к югу от цитадели: небольшая часовня, вырубленные в скале могилы. Тут же вход с лестничным спуском в большую искусственную пещеру.
Наличие перед самой цитаделью могильника, а также церкви и часовни, по-видимому, связанных с ним, лишний раз свидетельствует о том, что в раннесредневековое время территория укрепления ограничивалась Дырявым мысом; город же, выросший поверх могильника и на остальной части плато, — более позднего происхождения.
В кольце стен и башен
К югу от кладбища, на расстоянии 205 м от цитадели и в 16 м от южных обрывов плато, зачищены остатки двух разновременных построек, сооруженных одна на развалинах другой. От наиболее ранней — двухэтажного дома — сохранились лишь основания весьма толстых стен. Нижний этаж состоял из двух помещений. Главный вход в него вел с площадки перед обрывом, другой — с юга, из небольшого прямоугольного двора с калиткой. В юго-западном углу этого дворика есть круглая неглубокая вырезка в скале, служившая «гнездом» для большого пифоса. К восточной стороне жилого дома примыкали хозяйственные помещения.
От навеса на четырех столбах, который прилегал к дворику, уцелели только круглые углубления в скале. Найденные здесь многочисленные обломки кухонной гончарной посуды из красной глины носят следы украшений, чаше всего горизонтальными врезными линиями. Наряду с такой скромной посудой извлечены при раскопках и парадные чашки, кувшины, тарелки из белой глины, покрытые поливой светло-зеленого и желтовато-коричневого тонов.
Самая поздняя посуда из этого дома относится к XII-XIII вв. В основном это красноглиняные поливные чашки, миски и кувшины, украшенные прочерченным узором по светлому ангобу.
Кровля дома, как и всех других построек Мангупа, черепичная, о чем свидетельствуют многочисленные обломки, найденные при раскопках. На некоторых из них метки X-XII вв.
Судя по находкам, усадьба возникла еще в VIII в., время же ее гибели можно отнести к XIII в. По мнению Е. В. Веймарна, она была разрушена в конце XIII в., во время татаро-монгольского нашествия на города юго-западного Крыма29.
За усадьбой, у самого обрыва, видны в скале вырубки — следы небольшой трехнефной церкви, окруженной, как обычно, могилами. Здесь же искусно высеченная пещера, в которую можно спуститься по лестнице из шести ступенек. Вначале она служила в качестве погребального склепа. Затем в более позднее время приспособлена под хозяйственное помещение, для чего площадь ее была расширена к северу.
На южном краю обрыва плато, у входа в карстовую пещеру, в последние годы тоже расчищены остатки небольшой часовни. В ее алтаре заметен след от престольного камня прямоугольной формы. Внутри часовни была роспись по штукатурке, обломки которой обнаружены при раскопках.
Все эти подробности, быть может, несколько утомительны, но очень важны для истории Мангупа-города: они красноречивее, чем что-либо иное, говорят о времени его возникновения и его исторической топографии.
Боевые сооружения на Тышкли-Буруне стали городской цитаделью лишь около XIII в. Ранее (после X в.) крепость служила родовым гнездом местного маленького князька, тогда как само ее возникновение (не в качестве ли византийского укрепления?) может быть отнесено к более раннему времени, предположительно к VI в.
Княжеский дворец на плато Мангупа (по Е.Г. Сурову)
А — раскопанные строительные остатки: 1 — стены, открытые в 1912 г. Р.Х. Лепером и в 1938 г. доследованные А.Л. Якобсоном; 2 — стены, открытые в 1968 г. Е.Г. Суровым. Б — реконструкция первоначального плана: 1 — открытые основания стен; 2 — нераскопанная часть здания.
Западнее Банного оврага, на расстоянии примерно 100 м от его верховьев, находятся остатки дворца30 последних владетелей Феодоро, открытого в 1912 г. и дополнительно исследованного в 1938 и 1968 гг. Результаты последних раскопок, опубликованные лишь в конце 1972 г., позволяют представить дворец в виде большого (40×35 м), импозантного и симметричного здания прямоугольной, почти квадратной формы. К северной его стене примыкала снаружи башня, с южной же, между двумя боковыми помещениями, был вход — через изящную аркаду и просторные сени. Узкая сквозная галерея с двумя малыми глухими камерами на концах отделяла сени от главного помещения. Левая из больших боковых камер не имела окон. Скорее всего это была кладовая (при раскопках найдено множество обломков пифосов и амфор). Главное помещение дворца — парадный зал, разделенный на три равные части двумя двойными аркадами на двадцати четырех столбах. Толщина стен и обилие опор посреди просторного зала говорят о том, что здание было двухэтажным. При этом верхние помещения над выступающими к югу боковыми камерами могли быть выше прочих — стены их толще. Верхний этаж — несомненно, жилой; стены его покрывала штукатурка с фресковой росписью, а для украшения проемов использовались мраморные наличники. Вход наверх находился, по всей вероятности, в северной стене. Здесь, внутри башни, оказались следы винтовой лестницы.
Время строительства башни относится к 1425 г., о чем можно судить по надписи на плите, вделанной некогда в ее стену. В надписи говорится: «Была построена эта башня вместе с дворцом в благословенной крепости, которая видна ныне, во дни Алексея, владыки города Феодоро и Поморья […]».
Фрагменты каменной резьбы (из раскопок дворца)
Сам дворец, судя по керамике и архитектурным деталям, возник еще в XIV в. Но в конце этого или в самом начале XV в. он был разрушен пожаром, следы которого обнаружены при раскопках. В 1425 г. князь Алексей восстановил и обновил дворец, добавив новые постройки, и заново возвел башню.
При раскопках в изобилии найдены прямоугольная черепица больших размеров (40×60 см) с невысоким бортиком и плоским или округленным верхним краем. На некоторых черепицах — клейма (буквы греческого алфавита). Окна дворца были застеклены, о чем свидетельствуют куски желтоватого оконного стекла, обнаруженные при раскопках.
Особенно многочисленны обломки всевозможной посуды: красноглиняных кувшинов с прямым венчиком и плоскими ручками, с врезным орнаментом или горизонтальным рифлением и т. д. Интересны фрагменты сосудов со «звериными» изображениями, например носик кувшина в виде собачьей морды. Попадались археологам и красноглиняные горшки, миски, чашки, пифосы, амфоры, в изобилии — красноглиняная поливная посуда, главным образом местной работы.
При раскопках дворца найдена и привозная поливная керамика: персидские красноглиняные чаши с прозрачной поливой и синим («кобальтовым») подглазурным орнаментом в виде растительных завитков, нанесенных тонкой кистью; белоглиняные высокие чаши с прямым венчиком, покрытые толстым слоем светло-зеленой поливы. Такая посуда, по мнению А. Л. Якобсона, привозилась из Египта. Она могла попасть различными путями, например через Судак, который вел торговлю непосредственно с Египтом. Была найдена на территории дворца и турецкая белоглиняная посуда XV в., покрытая бесцветной прозрачной поливой. Сосуды эти украшены по верхнему краю подглазурным геометрическим узором в виде синих и красных треугольников.
Для исследователя большой интерес представляют обломки поливных чаш. Два днища чашек — бледно-зеленого цвета, переходящего в желтый, без орнамента, но на внутренней их стороне сплетены буквы X и Т. Не исключено, что это монограмма одного из упомянутых нами сотников — Хуйтани. Обломки двух других чаш покрыты бледно-желтой поливой; на дне одной из них врезной линией прочерчено имя Исаака, возможно, князя, правившего Мангупом с 1471 по 1474 г.
Пользовались феодориты и стеклянной посудой, среди обломков которой много рюмок на тонких изящных ножках, — синих, зеленых, а также из бесцветного прозрачного стекла.
В этом же помещении — «кладовой» — была кем-то утеряна в те далекие времена (не в 1475 ли году ?) золотая застежка в виде тонкой круглой пластины, диаметром около 2 см. Ее края украшены маленькими кружками, на лицевой стороне — аметистовая вставка в обрамлении таких же мелких кружочков.
Вся сумма подобных находок, их обилие и высокое качество, редкостность некоторых из них свидетельствуют о зажиточности княжеского дома. По ним можно судить и о широких торговых связях Феодоро с далекими заморскими странами.
Обломки гинянной посуды и металлические изделия (из раскопок дворца)
Осколки поливной посуды (из раскопок дворца)
Дворец князей Феодоро, в отличие от суровой цитадели, находился не на изолированной и почти голой скале, а в живописной и населенной части города, недалеко от источника воды, рядом с большим христианским храмом — базиликой, о которой речь ниже. К дворцу от главных ворот вела дорога; по одну ее сторону стояла оборонительная стена с башнями, а по другую — двухэтажные усадьбы зажиточных горожан. Следы усадеб прослеживаются местами и без раскопок — по выступающим из земли кладкам и микрорельефу почвы, заросшей кустарником и деревьями.
На первых порах после возникновения города, а также в момент опасности князя и его семью, вероятно, вполне устраивал донжон в цитадели. Позднее, когда княжество Феодоро стало играть видную политическую роль, тесное и неприхотливое жилище уже не могло их удовлетворить. Стала необходимой обширная специальная зала для приемов; князь с его домочадцами не только был не прочь, но и обязан, как глава государства, разместиться более широко, не хуже, чем другие владетельные особы. Надпись на каменной плите с двуглавым византийским орлом подчеркивает официальное государственное значение этой постройки.
Цитадель продолжала существовать вместе с дворцом. Она была нужна на случай войны — при прорыве обороны нижнего города. Вероятно, она использовалась как княжеская резиденция в начале XV в., пока восстанавливался сгоревший дворец. Цитадель могла послужить последним прибежищем князю и его семье в 1475 г., когда в город ворвались турки. Не пустовала она и у новых хозяев, дворец же в нижнем городе, разрушенный при захвате ими Мангупа, так и остался лежать в руинах.
Северо-западнее дворца, на расстоянии около 100 м, находятся остатки большого христианского храма31. Построен он в честь св. Константина и Елены и представлял собой трехнефную базилику, вытянутое с востока на запад прямоугольное здание, разделенное вдоль двумя рядами колонн (по 6 в каждом) на три части (нефа) с двускатной кровлей и с выступающими на восток полукружиями — абсидами.
Это наиболее крупная из всех мангупских церквей, вероятно, главная в городе. Длина ее 31,5 м, ширина — 26,2 м. По бокам пристроены были галереи, которые шли вдоль северной и южной стен храма.
План базилики св. Константина и Елены (по А.Л. Якобсону)
Пол центрального нефа состоял из больших каменных плит, в боковых же нефах найдены остатки мозаики. Входили в храм с западной стороны через нартекс (притвор), тоже разделенный на три части, каждая из которых имела вход в соответствующий неф. Храм неоднократно горел и восстанавливался, в последний раз — в конце XIV или начале XV в.
Как показали археологические раскопки, проведенные недавно в районе центральной абсиды, базилика эта построена в XIV в. на месте другой, возведенной намного ранее. Абсида более древнего храма, открытая при недавних раскопках, выступает с наружной стороны из-под основания более поздней.
Об убранстве храма и его архитектурных деталях мы можем судить на основе данных археологических раскопок. Установлено, что вход был приподнят над окружающей площадью, а вблизи двери из нартекса в базилику лежала известняковая плита с круглым гнездом для стояка, на котором вращалось дверное полотнище. На плите — следы долгого употребления. Два криволинейных каменных блока остались, по-видимому, от арочного перекрытия входа. Такой же камень оказался и при двери из нартекса в северный неф. Там же из завала стены извлечено несколько каменных «клиньев» арки и много мелких обломков известняковых плит, декорированных «плетенкой» и некогда обрамлявших портал.
Внутри храма обнаружено множество других архитектурных деталей разных строительных периодов. Интересны в историко-археологическом отношении обломки византийско-коринфских капителей V-VI вв. из проконнесского мрамора. Такие колонны и капители были широко распространены на всей территории Византийской империи и за ее пределами. К VI в. относится и ряд других архитектурных деталей: обломки пилястр от предалтарной преграды, изготовленных из известняка, база колонны из проконнесского мрамора, фрагмент капители с широколистым аканфом (из этого материала) и т. д. Как уже сказано, полы в боковых нефах были мозаичными. Материалами для мозаики связанной, по всей вероятности, с первым строительным периодом базилики, послужили белый привозной проконнесский мрамор, черный базальт, красный сланец.
Несколько слов следует сказать и о найденной здесь разнообразной посуде. Заслуживают внимания фрагменты раннесредневековых амфор и донышко поливной чаши из белой глины с рельефным орнаментом, покрытым зеленовато-желтой поливой.
Нельзя не упомянуть также о вещах из железа, в частности больших кованых гвоздях с почти квадратной шляпкой, по-видимому, для скрепления стропильных ферм. В значительном количестве попадались гвозди малого и среднего размера (от опалубки кровли), дверные петли и т. д.
В самом храме (в его полу) археологами открыто и обследовано множество могил. Здесь на протяжении почти тысячи лет непрерывно хоронили каких-то знатных особ — то ли церковных служителей, то ли каких-то представителей княжеского рода.
Могилы за пределами базилики залегали как бы в три яруса, перекрывавших друг друга. Нижние (т. е. наиболее ранние) могут быть отнесены к XI-XII вв. и самому началу XIII в. Инвентарь их весьма ограничен медные колечки, железные нательные кресты, медные и серебряные пуговицы в виде полых шариков с петлей.
Прочие находки единичны: просверленная бронзовая монета, служившая украшением, верхняя створка бронзового позолоченного креста — энколпия (хранилища «святых» мощей), обрывок головного убора и т. д.
Второй ярус датируется XIII-XIV вв. Погребальный инвентарь здесь еще незначительнее, многие могилы давно ограблены. Сохранились кое-какие вещи лишь в четырех из них: монеты XIII-XIV вв., пастовые бусы, медная пуговица в виде полого шарика с петлей, серебряное кольцо и пр. Интересна костяная накладка резной ажурной работы в виде цветка в обрамлении из дубовых листьев, заключенная в квадратную рамку. Такие пластинки были распространены в средневековом Китае и представляли собой украшения поясов. Тут же оказалась и татарская монета XIII в.
В верхнем — самом позднем — ярусе погребальный инвентарь совсем ничтожен. Найдены лишь позолоченное колечко со щитком, медная татарская монета и серебряный гвоздик.
К востоку от храма расположено еще одно христианское кладбище XIV-XV вв. с резными надгробиями.
Севернее храма, за галереей, была крещальня, сооруженная одновременно или почти одновременно с первоначальной базиликой. Позднее крещальню переделали в небольшую часовню, и тут, как и у западной стены и в северной галерее, появилось кладбище.
Наиболее интересная из сохранившихся церквей Мангупа находится вне его стен — в пещере над главной дорогой к восточным воротам. К ней вел уже упомянутый потайной выход из города по узкой незаметной расселине. Естественный грот перед храмом был использован в качестве своего рода двора. Во время больших церковных праздников и стечения богомольцев высеченный в скале небольшой храм, конечно, не мог вместить всех, и часть прихожан слушала богослужение, стоя на этой площадке. В противоположном ее конце, против храма — кельи настоятеля и других служителей культа. Тут же усыпальницы, тоже вырубленные в скале.
Обломки мраморных резных капителей (из раскопок базилики)
Внутри церковь была архитектурно оформлена карнизом, арками, пилястрами. Предалтарную преграду украшали ярко расписанные декоративные выступы и рельефные пояски. В полу выдолблено несколько корытообразных могил, поверх которых лежали некогда массивные каменные плиты. Можно предположить, что храм служил княжеской усыпальницей.
Алтарную абсиду, нишу в ней над престольным камнем, переднюю часть алтаря, арку, отделяющую алтарь от основной части помещения, покрывала некогда роспись32. В настоящее время сохранность ее очень плохая, кое-где уцелели лишь фрагменты.
Осколки поливной посуды (из раскопок базилики)
Слева и справа от ниши с образом Христа-отрока и крестом изображены святители («отцы церкви») в светлых, покрытых крупными крестами облачениях, каждый со свитком в руке. Над святителями — в конхе («раковине») абсиды — еще недавно была целая композиция из пяти человеческих фигур и помещенных между ними херувимов с алыми крыльями. В центре этой картины — Христос с приподнятой для благословения правой рукой, на коленях, в левой его руке Евангелие. Другие участники сцены, расположенные попарно по обе стороны от Христа, почти неопределимы. Фигуры сильно фрагментированы, лики и сопровождающие их надписи уничтожены.
Интересна роспись на плафоне арки. В центре — медальон с так называемым Знамением — поясным изображением Марии с воздетыми руками. По обе стороны от нее — два библейских пророка в коронах и пышных царских облачениях. Лик одного из них поражает своим живым портретным характером.
В росписи храма, датируемой XIV-XV вв. т. е. временем расцвета княжества Феодоро, прослеживается влияние итальянского искусства, носителями которого в Крыму могли быть венецианцы и генуэзцы.
Иконографическая схема и композиция фресок обычны для эпохи развитого средневековья. Образы их, нередко высокохудожественные, размещаются поярусно, в разных частях храма, сообразно положению каждого в сложной и многостепенной небесной иерархии. В целом роспись храма изображает «царствие небесное», однако в ней нетрудно узнать спроецированное на небо царство земное, т. е отражение человеческих социальных отношений. Посредством такой картины наглядно пояснялась идея незыблемости и святости земной феодальной структуры средневекового общества. Верующим феодальный строй представлялся как бы продолжением такого же небесного устройства: бог на небе в роли верховного всемирного владыки, а на земле князья или епископы в качестве его вассалов, но в то же время сеньоров по отношению к нижестоящим смертным. В этом главный смысл подобных композиций, вознесенных на стенах и сводах храма высоко над молящимися, кстати, тоже занимавшими строго определенные места, соответственно социальному положению каждого.
Вернувшись из монастыря на плато, окиньте взглядом всю ту огромную территорию, которая еще не раскопана. Если внимательно присмотреться, то на поверхности земли видны заросшие развалины домов, ограды, улицы. В покрытых кустарником и деревьями руинах прослеживается планировка города. Во многих местах заметны очертания небольших площадей, узких улиц и переулков, расходящихся в разных направлениях от двух въездов в город, с севера и востока. Кое-где можно различить и границы отдельных усадеб с их дворами, жилыми домами и хозяйственными постройками. На северных склонах городища, особенно в верховьях оврага Табана-Дере, у источника, городские усадьбы были расположены теснее и одна над другой — террасами.
Изделия из серебра и меди, найденные на Мангупе (пуговицы-бубенцы, крест-энколпий, крюк для подвешивания люстры, обломок хороса)
Центральная и, так сказать, аристократическая часть города, размещалась просторней. Жилые дома тут преимущественно двухэтажные, к ним примыкали утопавшие в зелени дворики с хозяйственными пристройками. Во дворах стояли пифосы с запасами воды, в более богатых усадьбах — выдолбленные в скале цистерны. Питьевую воду доставляли из источника Гамам-Дере, а для всяких хозяйственных нужд старательно собирали дождевую.
Банный овраг, надо думать, не напрасно так назывался. Здесь, поблизости от неиссякаемого родника, действительно могла находиться городская баня.
Город Феодоро не только служил резиденцией главы государства, подобно Бахчисараю. На Мангупе был крупный ремесленный и торговый центр, о чем свидетельствуют результаты археологических раскопок.
Хозяйство феодоритов
Экономика этого феодальною государства базировалась, прежде всего, на сельском хозяйстве, развивавшемся в плодородных долинах юго-западного Крыма. Население княжества занималось хлебопашеством, садоводством, огородничеством; значительного развития достигло виноградарство. Остатки виноделен с большими давильнями для винограда и других плодов имеются во всех городах, замках и монастырях Феодоро. Значительное развитие получило пастушеское скотоводство, в основном овцеводство. Процветали в княжестве и ремесла, главным образом гончарное, кузнечное, ткацкое. Не меньшую роль играли различные отрасли строительного ремесла, особенно камнерезное дело. Все более широкое значение приобретала торговля.
Города, замки, убежища и прочие укрепления, как правило, располагались на неприступных скалистых вершинах. На этих возвышенностях, в отрыве от речных долин, можно было успешнее всего заниматься ремеслом. Разведение крупного и мелкого рогатого скота требовало пастбищ и практиковалось на яйле. Земледелие же развивалось в плодородных, обильно орошаемых речных долинах. Там и были разбросаны многочисленные неукрепленные земледельческие поселения. Имелись такие поселения и непосредственно вокруг Мангупа: они-то и снабжали Феодоро продуктами сельского хозяйства33.
Одним из основных видов земледелия в долинах было выращивание хлебных злаков, по существу тех же, что и в античное время — пшеницы, полбы, ячменя, проса. Последнее, в частности, было найдено на Эски-Кермене в пифосах XIII в. Рубленая пшеничная и ячменная солома обнаружена в штукатурке храмов Эски-Кермена и Мангупа.
Землю пахали в те времена на волах примитивным плугом, убирали хлеб серпами, а хранили, как правило, в ямах, вырубленных в скале или вырытых в грунте. Грунтовые ямы обкладывались камнем, обмазывались глиной, которая потом обжигалась. Этот способ хранения зерна тоже был унаследован от античного времени. Для той же цели использовались и пифосы, находимые на всех средневековых городищах Крыма. Часто попадаются и каменные жернова от мелких ручных мельниц, а также зернотерки.
В садах Феодоро обильно произрастали всевозможные плодовые деревья: груши, яблони, сливы, вишня, айва, персик, абрикос, миндаль, черешня и т. д. Особое место занимали грецкий орех, орех-фундук и олива, из плодов которой извлекали масло. Повсюду в южном Крыму на местах средневековых поселений встречается одичавшее потомство этих растений.
Большое количество плодов сушилось на зиму; кроме того, из их сока приготовляли всевозможные напитки или варили густые сладкие сиропы, заменявшие сахар. Такой же обработке подвергали и дикорастущие плоды, собранные в лесах.
Следы средневековых виноградников и садов найдены на южном склоне Мангупа. Сохранились крепиды террас, а на них одичалые формы винограда и инжира34. Здесь же, невдалеке от пещерного монастыря, обнаружены остатки целого хозяйственного комплекса с давильней для винограда. На восточном краю городища, близ главных ворот и в некоторых естественных пещерах у подножия южных обрывов также есть следы виноделия: вырубленные в скале углубления со стоком, направленным в небольшие бассейны. Это остатки тарапанов — давилен35. Вино бродило, а иногда хранилось в пифосах, но в основном для его хранения использовались просмоленные амфоры, а для перевозок — овечьи и козьи меха.
Значительное место в экономике княжества нанимало животноводство. Во время раскопок поселений и городов найдены кости крупного и мелкого рогатого скота, свиней. Тягловой силой, рабочим скотом служили быки и волы, очень широко использовались ослы, реже — лошади, что можно отчасти объяснить условиями горных мест — тяжелыми крутыми подъемами и спусками. Кроме того, кони были нужны для военных целей.
В средневековом стаде горного и предгорного Крыма преобладали овцы и козы — «поставщики» молока, мяса, шерсти и шкур. Судя по костным остаткам, а также высоте каменных стойл, разводили феодориты и коров малорослой горной породы, отличавшейся высокой жирностью молока.
На Мангупе, под нависающими скалами Елли-Буруна, видны остатки параллельной обрыву каменной стены, высотой до 1,5 м при толщине до 1 м. От нее почти перпендикулярно отходят узкие перегородки, примыкающие к обрыву; огороженных таким образом участков (площадью от 50 до 220 кв. м) насчитывается пока восемь. Это загоны для скота, имеющие самостоятельные входы со стороны дороги, огибающей мыс36. Почти при каждом из них — следы небольших жилых построек временного типа, по всей вероятности хижин для пастухов. Такие сооружения имеются во многих местах горного Крыма.
Города и даже мелкие укрепления княжества Феодоро в XIV-XV вв. отличались интенсивным развитием кузнечного дела. На многих из них раскопками обнаружены кузнечно-литейные мастерские, мелкие горновые печи для плавки металла (Яман-Таш, Бойка, Гаспринский исар, укрепления на мысе св. Троицы и др.). На всех укреплениях есть следы этого производства в виде кусков кричного железа или заготовок болотной руды. При раскопках Мангупа найдено много железных предметов — поясные пряжки, всевозможные гвозди, подковы, ножи, наконечники стрел и т. д. Все это местного производства и говорит не только о развитом кузнечном, но и слесарном деле. Железоделательные ремесла были, конечно, основой почти всех прочих; они имели прямое отношение и к строительству, и к сельскому хозяйству, которые не могли бы процветать без железных орудий труда.
Развалины загонов для овец под скалами Елли-Буруна (по Е.В. Веймарну)
Бросается в глаза высокий уровень строительного дела. Каменотесы и строители Мангупа сооружали не только дома, храмы и дворцы, но и мощные оборонительные стены с башнями, которые так и не смогли взять приступом турки. Многочисленные обломки колонн, капителей, резные наличники и прочие украшения из местного камня — свидетели развитого камнетесного ремесла, переходящего нередко в подлинное искусство. Все это делалось мастерами высокой квалификации, хорошо знакомыми с камнетесным и камнерезным делом Византии, Малой Азии. Закавказья.
Знакомо было феодоритам и деревообделочное производство. При возведении домов требовалось изрядное количество деревянных стропил, балок для межэтажных перекрытий, оконных рам, дверей, лестниц, в быту — столов и скамей, веретен, простейших ткацких станков и т. д. Удовлетворить эти потребности могла лишь многочисленная армия ремесленников — плотников и столяров.
Значительного развития достигло гончарное производство. На Мангупе изготовлялась не только кухонная, но и столовая посуда, а также амфоры и пифосы всевозможных размеров, начиная от маленьких, высота которых не превышала 1 м, и кончая двухметровыми. Поливная посуда украшалась растительным и геометрическим орнаментом и по своему качеству не уступала привозной.
На всей территории княжества не было мало-мальски значительного поселения или группы поселений, где не имелось бы одной или нескольких гончарных печей. Практиковалось также изготовление грубых керамических сосудов и в домашних условиях. Сделаны эти вещи «от руки», плохо обожжены (вероятно, в тех же печах, где готовили пищу) и повторяют форму и «отделку» более древней посуды. Археологам предстоит выяснить, совпадения ли это, вызванные одинаково примитивными условиями производства, или давала себя знать преемственность древней традиции.
Всевозможные ювелирные украшения из бронзы, меди и серебра — серьги, кольца, нательные кресты, ажурные пуговицы — изготовлялись местными ювелирами, изделия которых могли проникать на поселения княжества Феодоро и за его пределы. Местного производства и многие предметы из кости — украшения шкатулок, коробочки, пуговицы, резные накладки ножей и мечей и проч. Все это изделия искусных рук, украшенные затейливым орнаментом.
Кожевенное ремесло, по-видимому, также получило значительное развитие в столице феодоритов. Мы уже не раз упоминали о Кожевенном овраге, названном «в честь» ремесленников-кожевников. В его верховьях и сейчас видны высеченные в скале глубокие чаны для вымачивания и дубления кожи. Шкуры, первично обработанные, поступали сюда из окрестных поселений.
Простое население Феодоро носило домотканые одежды. Прядение, а вместе с ним вязание и ткачество были высоко развиты на Мангупе и в других местах — этим занимались в каждом доме. Везде в изобилии найдены глиняные пряслица.
Несмотря на потерю Балаклавской бухты, захваченной генуэзцами, Мангупское княжество успешно торговало с заморскими странами. Выход к морю открывал ему возможность самостоятельно продавать не только свою, главным образом сельскохозяйственную, продукцию, но и быть посредником в морской торговле Крымского ханства, Османской империи и далеких восточных стран.
Ювелирные изделия (из раскопок Мангупа)
Медные вещи, найденные при раскопках города (ритуальное «копье», цепи от хороса, гвозди, пуговица-бубенчик)
Торговля шла в основном через Каламиту, процветание которой началось после угасания Херсона. Старый торговый путь из степей в Херсон заканчивался теперь возле этой укрепленной гавани. Внутренние торговые пути княжества тоже подходили к ней по речным долинам. В XV в. она указывалась на морских картах многих стран в числе основных морских портов того времени. Не случайно поэтому во время археологических раскопок, проводившихся в Каламите, найдено большое количество обломков посуды из Малой Азии, Средиземноморья, Закавказья и других земель Востока и Запада.
В самой столице княжества посуды этой и прочих привозных вещей оказалось тоже немало. По-видимому, князь, члены его семьи и приближенные носили одежду из привезенных с Востока тканей — шелка и парчи, украшали себя восточными ювелирными изделиями, пользовались богатым заморским оружием.
Интересны находки оконного стекла и стеклянных изделий, особенно привозных. Среди них привлекают внимание фрагменты широкогорлых стеклянных сосудов из венецианского стекла — красного, темно-зеленого, молочного цветов. Но, пожалуй, наибольший интерес представляют фрагменты синего стекла с эмалевой росписью белыми и красными полосами, поражающего яркостью красок.
В культуре столицы феодоритов чувствуется весьма заметное иноземное влияние. В орнаментальные украшения дворца, цитадели и большого храма многое пришло из Византии, Армении, Малой Азии. Во фресковой росписи, наряду с византийской основой, улавливаются веяния итальянского ренессанса. Постоянные экономические и политические связи с соседями способствовали, надо полагать, культурному взаимовлиянию. Не исключено поэтому, что и Мангупское княжество, в свою очередь, могло оказать известное влияние на быт и культуру ближайших соседей.
Широкому культурному обмену способствовали родственные связи правителей Мангупа с другими государями, о чем говорилось выше. В те времена семейные дела князей, королей и прочих «самодержцев» были неотделимы от государственных дел, и фамильные интересы правителей часто становились интересами страны в целом. Поэтому для историка важно и то немногое, что известно о «хозяевах» Мангупа.
Властители «Готии»
Конкретных данных о раннем этапе истории княжества очень мало. В частности, остаются неясными имена первых его князей. Этому вопросу посвятили не одну страницу своих трудов виднейшие исследователи крымского средневековья37.
Не раз высказывалось предположение, что исторически известные князья Феодоро сродни знатным выходцам из Трапезунда, принадлежавшим к вельможному армянскому роду Гаврасов, которые появляются в Крыму уже в XII в. в качестве византийских наместников (топархов). Вполне возможно, что до них, а затем вместе с ними — в силу родственных уз — владельцами Мангупа были потомки местной феодализировавшейся знати, принявшей христианство и подчинившейся Византии.
Напомним, что в 1913 г. при раскопках мангупской базилики обнаружены надписи, которые называют имена сотников: одна некоего Чичикия, другая — Хуйтани, видимо, правивших на Мангупе около середины XIV в. и возводивших какие-то укрепления. За ними идут Василий и его сын Стефан, однако о титулах или военных чинах этих администраторов ничего не известно. К концу XIV в. относится упоминание о каком-то мангупском правителе Дмитрии, воевавшем против литовцев на стороне татар вместе с владетелем соседнего княжества Кырк-Ер (Кырк-Ор).
В начале XV в. княжеством Феодоро правил энергичный и умный Алексей, сын Стефана, названный в надписи «владетелем Феодоро и Поморья». Он стоял во главе княжества до 1434 г., вероятно, до дня своей смерти, и о его незаурядном княжении есть немало сведений в различных (преимущественно итальянских) источниках. Имя Алексея связано с возведением ряда построек. Чтобы обеспечить княжеству выход к морским торговым путям, Алексей возродил заглохшую Каламиту. В 1427 г. он заново отстроил эту существовавшую еще в период раннего средневековья, но к XV в., видимо, сильно обветшалую крепость.
В 1433 г. Алексею удалось завладеть Балаклавской бухтой и крепостью Чембало38, которую генуэзцы еще в 1357 г. отняли у княжества Феодоро.
Этому пункту, крайнему на западном побережье, расположенному на границе с. владениями княжества, Генуя придавала большое значение. Командовал Чембало подчиненный Кафе консул, в ведении которого были все гражданские и военные дела. «Устав» генуэзских колоний 1449 г. уделял большое внимание взаимоотношениям генуэзцев с местным населением. В частности, запрещался «дурной обычай» забирать по дешевке товары у местного населения в качестве процентов за долги.
Злоупотреблений со стороны консулов Чембало было более чем достаточно, и это сильно восстанавливало местных жителей против генуэзцев. Князь Алексей послал в Чембало своих людей под видом купцов. Они умело использовали настроения жителей, доведя до накала их недовольство генуэзским владычеством. Почва для открытого возмущения была подготовлена: с одной стороны — жестким и несправедливым чужеземным режимом, а с другой — умело проведенной агитацией против этого режима.
Весной 1433 г. из Феодоро в Чембало отбыл специально посланный военный отряд. При известии о его приближении в городе вспыхнуло заранее организованное восстание. Генуэзцы были изгнаны, и крепость Чембало перешла в руки феодоритов.
Приобретение второго и столь удобного морского порта имело чрезвычайно важное значение для княжества. Отныне Алексей получал все основания считаться на деле «владетелем Поморья». Обладание этой крепостью сразу усиливало позиции Феодоро на южном и западном побережьях Крыма, давало феодоритам крупные козыри в торговой и политической игре с генуэзцами. «Лавочники», как обозвал последних А. Л. Бертье-Делагард, возмутились.
Сенат Генуи, получив извещение о потере Чембало, взял ссуду в банке св. Георгия и снарядил карательную экспедицию: 20 галер с 6000 отборных морских и сухопутных вояк под командованием известного генуэзского полководца Карла Ломеллино. Случайно стали известны подробности этого похода. В составе экспедиции находился в качестве матроса шпион Венецианской республики — соперницы Генуи, который посылал в Венецию подробные донесения о походе и военных действиях.
Вот что известно из этих донесений39.
4 июня 1434 г. к Чембало подошел генуэзский флот, а 5 июня после жестоких боев генуэзцы перерезали цепь, заграждавшую узкий вход в гавань, и в нее вошли вооруженные бомбардами суда. 6 июня, в воскресенье, войска их высадились на берег и осадили город. На следующий день, выгрузив на сушу несколько больших пушек, генуэзцы обстреляли одну из башен укрепления. Это навело такой страх на жителей Чембало, что вечером того же дня они начали переговоры с начальником эскадры, соглашаясь сдаться на условиях сохранения имущества и жизни жителям. Однако генуэзцы потребовали сдачи города без всяких условий. 8 июня сражение возобновилось, и ворота крепости оказались в руках противника. Среди осажденных находился юный сын Алексея — тоже Алексей. Вместе с 70 воинами он отступил внутрь крепости, но вскоре прекратил сопротивление. Княжеский сын и еще несколько человек, получив пощаду, были переведены на суда генуэзцев, где некоторое время находились в плену, а город отдан на разграбление солдатам, которые перебили множество жителей.
Генуэзцы на том не успокоились. На следующий же день, не теряя времени, их галеры направились к Каламите. На предложение сдаться ее жители ответили, что если им будет сохранена жизнь и имущество, они сдадутся к вечеру следующего дня. Получив согласие генуэзцев, каламитяне незаметно для врага ушли из крепости вместе с имуществом; разъяренные генуэзцы подожгли Каламиту. Оставаться долго в обезлюдевшем городе без продовольствия они не могли и вернулись в Чембало. После этого генуэзцы двинулись вдоль южного побережья на восток, грабя поселения, разрушая крепости местных феодалов и приводя к повиновению тех, кто пытался сопротивляться.
Так неудачно закончилось для владетелей Феодоро возвращение Чембало. Каламита же вскоре была восстановлена, и снова началась ежедневная, подспудно протекавшая борьба за Поморье.
Что касается княжича, взятого в плен, то его пребывание у генуэзцев оказалось непродолжительным. Видимо, сразу же по окончании военных действий он был освобожден и в том же 1434 г., после смерти отца, стал правителем Феодоро. Освобождение Алексея объяснялось, по-видимому, соображениями дипломатического характера. Политика генуэзских властей была дальновидной: назревала турецкая опасность, уже имели место первые (так сказать, пробные — со стороны турок) военные столкновения. Следовало искать политического равновесия на полуострове, и в течение всего княжения Алексея-младшего мы действительно не видим враждебных стычек с генуэзцами.
Надпись из Каламиты. В центре — монограмма князя Алексея, «владетеля Феодоро и Поморья»
В первой половине XV в. при князьях Алексеях — старшем и младшем — княжество Феодоро достигло наивысшего расцвета. Об этом свидетельствуют и династические связи феодоритов. Так, например, в 1426 г. произошло важное для Феодоро событие: дочь старшего князя Алексея — Мария вышла замуж за знатного вельможу Давида Комнина, ставшего вскоре трапезундским императором. Брак этот сильно повысил политический престиж Мангупского дома. Мария была первой женой Давида и, к счастью для нее, не дожила до бедственного 1461 г., когда Трапезунд, вслед за Константинополем, попал в руки турок.
Оба Алексея пользовались таким почетом в Крыму, что их именем стало называться иногда и само княжество. Так, в донесении венецианскому дожу о падении Кафы и Мангупа последний назван Алексой.
После смерти Алексея-младшего, судя по татарским источникам, княжил его сын Олу- или Улу-бей («большой князь»). Можно с уверенностью сказать, что татарское его прозвище не было именем: до 1475 г. все князья Феодоро исповедовали христианство и носили только православные имена.
Прозвище «большой князь» появилось, конечно, не случайно. Вне всякого сомнения, уже отец Олу-бея сделался важной политической фигурой феодальной Таврики, и этому вполне соответствует титул, которым наделяют его ближайшего преемника итальянские источники — «сеньор Феодоро», а также русские документы, где он зовется князем.
Сразу же после падения Константинополя (1453 г.) заметно возрастает экономическое соперничество между Кафой и Каламитой. Последняя привлекала к себе немалую часть выгодных торговых операций на Черном море (в том числе сделок с турками), еще сравнительно недавно составлявших монополию Кафы.
Для Феодоро стало теперь необходимо не чураться протурецкой ориентации, а тем более — жить в мире и дружбе с Крымским ханством. Только таким способом мангупский князь — в окружении опасных соседей и без поддержки извне, со стороны Византии или византийского Херсона, как это было раньше, — мог рассчитывать на продолжение своего политического существования. По-видимому, при Олу-бее наметилось со всей определенностью сближение бывшей Готии с соседями-татарами. И дело тут не только в политических расчетах князя, но и в повседневном общении татар и греков-феодоритов. Неизбежное при этом взаимовлияние вполне очевидно, и в нем, быть может, кроется одна из причин легкости турецко-татарского захвата всей Таврики. Иначе чем еще объяснить, что город Феодоро позднее — в дни его осады и гибели — не был поддержан окрестным населением?!
Князь Мангупа, кровный родственник двух императорских домов — константинопольских Палеологов и трапезундских Комнинов — мог, по нормам своего времени, считать себя законным наследником всех действительных и номинальных крымских владений павшей Восточно-Римской империи. Генуэзцы, в свое время хорошо заплатившие Византии за Черное море, за неограниченное право торговли на его берегах, а татарам — за место на подвластной им территории крымского побережья, тоже считали себя законными хозяевами Поморья. А коль скоро татары стали к тому времени силой на полуострове, обе стороны искали их поддержки своим притязаниям. Татары же, как известно из ряда документов, лукавили и, к выгоде для себя, поддерживали то тех, то других.
Реальный перевес в этой борьбе, как мы уже знаем из эпизода с Чембало, мог быть на стороне генуэзцев: оружие, флот, казна. Однако политический перевес — ввиду турецкой опасности и благодаря сильным династическим связям мангупского княжеского дома — оказался на стороне феодоритов. К политическому равновесию в Таврике стремились в тот момент обе стороны, и оно было молчаливо достигнуто. Стороны ограничились торговым соперничеством, а Поморье стало похоже на тесную кухню в недружной коммунальной квартире. Каждый стряпал свое на общей плите, скрывая раздражение против соседа любезными фразами и норовя исподтишка плюнуть ему в суп.
В 1471 г. Олу-бей умер и правителем Феодоро стал почему-то не сын его, а брат Исаак (по генуэзским документам — Саик, по русским источникам — Исайко). Как произошло это восшествие на престол, толком неизвестно. Некоторые источники глухо доносят о раздорах в княжеском доме, о двух несогласных между собой и враждовавших «дуках» (военных вождях), из-за распрей между которыми тяжко пострадало государство.
Важный факт, длительное отсутствие сына Олу-бея Александра, подтверждает справедливость этих неясных сведений. Почему он живет как бы в изгнании в гостях у сестры Марии и своего молдавского шурина? Почему не Александр, а его дядя стал княжить на Мангупе? По аналогии с историей многих других княжеских домов можно подозревать с полной уверенностью, что в Таврике XV в. происходила междоусобная борьба. Таким образом, готовясь обрушиться на Крым, сильная, построенная на началах единовластия империя османов получала все шансы на успех. Нетрудно заметить по многочисленным итальянским документам, что по мере того, как один военный успех за другим сопутствует торговой, особенно пошлинной политике Турции, растет захватнический аппетит ее «юного и ненасытного» султана Мехмета II40.
В отношениях Мангупского княжества с генуэзцами еще перед тем произошла, как уже говорилось, значительная перемена. После 1453 г., когда турки захватили Константинополь и проливы из Черного моря в Средиземное, связи крымских генуэзских колоний с Генуей были сильно затруднены. Колонии в Крыму оказались почти отрезанными от метрополии, и перед лицом турецкой опасности власти Кафы начали поневоле искать союзников даже в лице владетелей Мангупа, своих торговых конкурентов.
У Саика завязались настолько дружеские отношения с недавним врагом Феодоро — Кафой, что он лично поехал туда, чтобы заключить мирное соглашение. Сохранилось следующее письмо протекторов банка св. Георгия от 26 апреля 1471 г.: «Славному, дражайшему другу нашему, господину Саику, властителю Феодоро. Славный, дражайший друг наш! Нам доставило большое удовольствие, что мы были оповещены властителями нашими из Кафы о том, что ваша светлость лично приехала в этот город и заключила с ней новые соглашения и союз для защиты государств обеих стран»41.
Ко времени правления Саика относятся документы, которые говорят о завязывании новых династических и политических связей Феодоро с Молдавией и великим княжеством Московским. В 1472 г. мангупская княжна, дочь умершего Олу-бея, была выдана замуж за Стефана Великого (Душана), господаря Молдавии. Из русских же документов XV в. известно, что в 1474-1475 гг. великий князь Московский Иван III поручал своим послам вести переговоры с «Исайкой» (Саиком) о браке московского княжича с дочерью феодорита. Брак этот не состоялся лишь из-за турецкого вторжения в Крым.
В первой половине 1475 г. князем Мангупа стал племянник умершего Саика, сын Олу-бея Александр. Узнав о смерти дяди, он спешно прибыл из Молдавии в Крым с десантом (как сказали бы мы теперь) из трехсот воинов, которых дал ему шурин.
Высадившись у Батилимана (бухта Ласпи), Александр отважно напал на Мангуп с целью отбить отчий престол у только что воссевшего на него двоюродного брата. Однако тот, как сын умершего Исаака, занял княжеское место на основании престолонаследного обычая, а в глазах приверженцев его отца, быть может, и значительной части населения Феодоро, это был акт, не менее законный, чем в глазах других, — возвращение племяннику престола, узурпированного дядей. Как бы то ни было, династическая распря завершилась вооруженной, но — увы! — эфемерной победой Александра: Мангуп, а вместе с ним и княжеский дом, доживали свои последние дни.
Тем же летом 1475 г. турки-османы при поддержке татар и не без расчета на ослабление Феодоро борьбой двух князей, а значит, и двух политических партий, высадили свои войска на крымском берегу. Сначала они взялись за Кафу, которая была сломлена непостижимо быстро. Вслед за ней пали под ударами турок и прочие крепости на всем побережье.
В июле 1475 г. османы и примкнувшие к ним татары подошли к Мангупу. Нападающие были вооружены передовым по тому времени огнестрельным оружием, в том числе снятыми с кораблей пушками. Феодориты, лишенные всех этих преимуществ, могли рассчитывать лишь на неприступность крепости да на собственное мужество. Город и князь Александр со своей молдавской дружиной сопротивлялись самоотверженно. Пять раз ходили турецко-татарские отряды на приступ, однако мангупская твердыня выстояла. Началась мучительная осада; некоторые источники говорят, что она длилась не менее трех месяцев42. Наконец в городе иссякли запасы продовольствия, вспыхнули болезни. Защитники Феодоро настолько ослабели, что вынуждены были сдаться на милость противника.
Турки обещали пощадить осажденных. Но, захватив Мангуп, они подвергли его страшному разграблению, зверски истребили почти всех, не щадя ни детей, ни стариков. Затем город подожгли. Князь Александр погиб в заточении в Константинополе, а женская половина его семьи попала в султанский гарем, что было равносильно пожизненному заключению. Все взрослые княжьи родичи мужского пола разделили судьбу Александра, остался в живых лишь маленький его сын. Мальчик вырос в Турции и стал впоследствии родоначальником знатной, но не влиятельной фамилии.
В первой половине XVI в. среди турецких послов к московскому великому князю Василию III несколько раз мелькают мангупские князья. Очевидно, турки сохранили за воспитанным ими княжичем этот почетный титул, а его потомки время от времени несли не то дипломатическую, не то коммивояжерскую службу при дворе султана. Подобная политика была обычной для «блистательной» Порты: ее администраторы прекрасно учитывали обаяние знатного имени. Они умело использовали авторитет, которым в течение какого-го времени продолжали обладать представители местной знати среди народа завоеванной страны и в других землях.
Мангуп, Каламита, Чембало вместе с прилежащими к ним территориями, а также населенными пунктами Южнобережья вошли в состав Мангупского кадылыка — своего рода судебно-административного округа, подчиненного султану, с центром на Мангупе и кадием (судьей) во главе. Каламита была переименована в Инкерман, а Чембало стала зваться Балаклавой.
Оборонительные сооружения мангупской цитадели продолжали служить и новым хозяевам. В ее донжоне и отдельных пещерах, превращенных ими в казематы, содержались особо важные узники и пленные.
К названию города, которое во второй половине XV в. распространялось на все княжество, турки прибавили слово «Кале»: Мангуп-Кале — значит «Мангупская крепость». Первоначальное же или, точнее, более раннее имя города — Феодоро — надолго кануло в безвестность.
С укреплением власти турок в Крыму значение Мангупа как крепости постепенно убывает, его оборонительные сооружения, ремонтируемые все реже, ветшают. В хорошем состоянии, и то недолго, поддерживаются лишь некоторые жилые помещения и боевые казематы цитадели.
Дважды, в 1493 г. и сто лет спустя, в 1592 или 1593 г., Мангуп горел, причем оба раза пожаром была охвачена большая часть города. Следы огня еще и сейчас видны кое-где на сильно поврежденных стенах крепости. И все-таки в 1578 г. Мартин Броневский, польский посол к хану Мухаммед-Гирею II, в своих путевых записках отмечает, что на Мангупе два замка, построенных на обширной и высокой скале, великолепные греческие церкви, дома. Но тут же не без грусти добавляет: «…о владетелях и народах, населявших эти города и величайшие замки, нет уже никаких летописей…»43
Шли годы. Мангупское городище превращалось в забытый памятник истории. Французский инженер Боплан побывал здесь около 1660 г. и отозвался о нем уже как о незначительном местечке. На картах Крыма XVII- начала XVIII в. в числе немногих крымских городов Мангуп еще показан. Но со второй половины XVIII в. память о нем глуха.
Мангуп почти опустел, когда по Кучук-Кайнарджийскому мирному договору (1774 г.), заключенному после русских побед над турками, все христианское население полуострова было вынуждено, как говорится, «в принудительно-добровольном порядке» покинуть Крым. Город лишился последнего присмотра и быстро превращался в руины. Видимо, поэтому сюда, по распоряжению татарских властей, переселилось несколько десятков караимских семейств, издавна живших в Табана-Дере.
С окончательным утверждением в Крыму русской власти (1783 г.) Мангуп приходит в полное запустение. Оказавшись в стороне от новых проезжих дорог, он долго почти ни кем не посещался.
Поселения хлебопашцев и виноградарей, хижины рыбаков и скотоводов Феодоро существовали и после того, как сгинуло княжество и быльем поросла память о его столице. Многие села современного Крыма ведут свое начало от средневековых.
Жизнь продолжалась. Как и прежде, народу пришлось кормить и свою знать, что стала служить турецким и татарским владыкам, а заодно и новых господ. Властители то и дело сменялись, враждовали, истребляли друг друга, но народ оставался. Он жил и творил Историю. Так нельзя ли сказать о нем обстоятельнее, шире?
Хотелось бы, конечно, побольше узнать об этносе и культуре трудового населения средневековой Таврики, полнее раскрыть его социальное расслоение, ярче осветить быт, заглянуть в жилища, увидеть, как жили люди. Хотелось бы рассмотреть на большем числе примеров организацию сельского хозяйства, ремесла, торговли, уяснить их экономические потенциалы. Хотелось бы…
Однако задача эта не из легких.
Как подойти к ее решению?
Княжество Феодоро и его столица не оставили по себе ни метрических и нотариальных актов, ни жалованных грамот, ни монастырских и церковных анналов или судебных дел, ни записей торговых сделок — словом, нет документов. И совсем не потому, что всего этого не было: многое, очевидно, погибло — сгорело в пожарах, сопровождавших военные столкновения, уничтожено жителями Таврики, пожелавшими скрыть свое прошлое ввиду выселения христиан из Крыма. А все, что могло сохраняться церковью, — уплыло от рук исследователей. Уплыло в прямом смысле слова: немалая часть местного православного духовенства бежала за море, прихватив с собою архивы монастырей и сельских церквей.
Немногим может располагать историк. Кроме тенденциозного отражения дел Феодоро в документах Крымского ханства, да в генуэзских актах, уставах, служебной переписке, у него есть лишь один источник — объективные, но, к сожалению, все еще скудные археологические данные. В полной ли мере учтены они в этой книге? Ответим: использовано то, что сочтено достоверным и достаточно ясным.
За пределами книги оставлена работа А. Л. Якобсона «Раннесредневековые сельские поселения юго-западной Таврики», отмеченная печатью небрежности и спешки. Несоответствие выводов приводимому археологическому материалу, отсутствие культурно-исторической стратиграфии, неточности в описании памятников, ошибки в указании их местоположения и т. д. — не слишком ли для одной книги?..
Наберемся терпения — археология дело трудоемкое и нескорое.
Итак, в социально-экономическом отношении Феодоро и его столица изучены слабо. Немногим более (лишь по косвенным источникам) известна политическая история Мангупа. Но мы не завысили исторический «ранг» княжества. Не такой уж глухой, далеко не пассивной стала в XIV -XV вв. эта бывшая византийская фема, как может показаться по скудости ее собственных исторических документов.
Обладание Крымским полуостровом всегда означало преобладание на Черном море. Упустить из виду этот факт значило бы недооценить и те великие торговые пути, что тут проходили, и те политические и культурные связи, которые развивались в Азово-Черноморском бассейне. Родившись здесь, в самой гуще сложно переплетавшихся интересов больших стран Запада и Востока, маленькое княжество Феодоро не просто сверкнуло и исчезло, точно яркая бабочка-однодневка. Оно наращивало свой удельный вес, мужало в битвах; теснимое татарами и генуэзцами, упорно пробивалось к морю; оно искало и достигало политического признания. Из него уже вырастало нечто большее, чем фема климатов, и мы видели, как Мангуп сделал первые шаги на мировой исторической сцене.

Укрепления южной Таврики XIV-XV вв.
Но случилось то, что случилось. На крымских «подмостках истории» был разыгран не тот спектакль, в котором Мангуп мог бы выступить в первой роли. Другое государство средневекового Крыма — татарское ханство — при помощи турок захватило главную роль и сыграло ее по-иному: вопреки интересам и древним правам Русской державы, по подсказке «блистательной» Порты…
На заброшенном пепелище
Осенью 1975 г. полтысячелетия минет с того кровавого дня, когда пленен был князь и погибла его дружина, когда под ударами османов пала столица феодоритов и рухнуло княжество Феодоро. А последние жители Мангупа покинули его относительно недавно — всего около двух столетий назад. Триста лет они растаскивали камень руин для своих убогих нужд, и многие блестящие строения исчезли бесследно. О былом величии города еще говорят лишь оборонительные стены с башнями, полуразрушенная цитадель да развалины большого храма. До сих пор поражают всех и пещерные сооружения с исчезающими остатками фресок «дивной красоты», как в свое время писал известный, ныне покойный художник и искусствовед И. Э. Грабарь.
Перечень уцелевшего, как видим, невелик. Но в нем ли суть дела? Остался комплекс археологических памятников, ценный тем, что он почти не осложнен позднейшими культурными отложениями, не искажен радикальными перестройками. Яснее, чем где бы то ни было в Крыму, здесь запечатлен важнейший этап исторического процесса, когда формируется средневековое государство, происходит становление феодальных отношений. В этом и состоит выдающееся научное, познавательное и, если можно так выразиться, «лабораторное» значение бывшей столицы феодоритов.
Мангуп наших дней — не только объект научных исследований и место историко-археологических экскурсий. Летом подъем на него — цель многих чисто туристских походов. Одних привлекает сюда колоритная и трагическая история Феодоро, интерес к древностям, других — красота ландшафта. Видимо, у всех надолго остаются в памяти седые руины, потонувшие в буйном лесу. Куда ни поворотись — видишь, как белеют они на фоне темно-зеленых сосен или сверкают сквозь яркую листву, дрожащую от едва ощутимого ветра.
Лес Мангупа! Есть ли где благоуханнее и краше?..
Весной молодой кизильник разбрасывает по нежно-зеленым склонам золотистую россыпь своих цветущих ветвей. А рядом примостились среди развалин дикие отпрыски древних яблонь и груш, и пелена бело-розовых лепестков устилает землю.
Нет леса свежей и желанней и в знойное лето: каждому в радость прохладная тень его куш и струя родника под скалистым обрывом.
Осенью тот же лес, по-княжески одетый «в багрец и золото», роняет тихий лист на грустное пепелище феодоритов. Стужей дохнёт зима, заморосят дожди, и сквозь посвист сосновых ветвей, сквозь треск бурелома слышатся или чудятся невнятные стенания ветра в пустых и холодных пещерах.
А по безлюдному плоскогорью, по зимнему пастбищу, где неистово зеленой травой зарастают древние руины, пронесутся вдруг, оглашая тишину ржаньем, чьи-то кони, хлебнувшие воли и простора.
Прекрасны в ту пору и голые скалы Мангупа. Необъятные горные дали открываются с их высоты.
Литература и источники
- P. Pallas. Bemerkungen auf einer Reise in die sudlichen Staathalterschaften des Russischen in den Jahren 1793-1794. Leipzig, 1799-1803. Русский перевод: «Путешествие по Крыму академика Палласа в 1793 и 1794 гг.» Записки Одесского общества истории и.древностей (ЗООИД), т. XII, 1881, стр. 123, 132-135; П. И. Кеппен. Крымский сборник, СПб, 1837, стр. 96, 261-290; F. Dbois de Montpereux. Voyage autour du Caucase, chez les Tcherkesses et les Abkhases, en Colchide, en Georgie, en Armenie et en Crimee, t. VI, Paris, 1843, стр. 272, 286; А. Л. Бертье-Делагард. Каламита и Феодоро. Известия Таврической ученой архивной комиссии (ИТУАК), вып. 55, Симферополь, 1918; Его же. Исследование некоторых недоуменных вопросов средневековья в Тавриде, ИТУАК, вып. 57, Симферополь, 1920; Н. И. Репников. Княжество Феодоро и падение Готии. Архив Ленинградского отдела Института археологии АН СССР, копия — в Бахчисарайском историко-археологическом музее; Р. X. Лепер. Археологические исследования в Мангупе в 1912 г. Известия императорской Археологической комиссии, вып. 47, СПб, 1913, стр. 73-79, 146-154; Его же. Сообщения о раскопках на Мангупе в 1913 г. ИТУАК, вып. 51, Симферополь, 1914, стр. 197; А. Л. Якобсон. Из истории средневековой архитектуры в Крыму. II. Мангупская базилика. Советская археология (СА), вып. VI, М., 1940, стр. 205-226; Его же. Дворец. Материалы и исследования по археологии СССР (МИА), № 34, М.-Л., 1953, стр. 390-418; М. А. Тиханова Дорос-Феодоро в истории средневекового Крыма. МИА, № 34, стр. 319-333; Ее же. Базилика. Там же, стр. 333-389; Е. В. Веймарн. Разведки оборонительных стен и некрополя. МИА, № 34, стр. 419-429; Его же. «Пещерные города» Крыма в свете археологических исследований 1954-1955 гг. СА, 1958, № 1, стр. 71-79; Его же. О двух неясных вопросах средневековья юго-западного Крыма. В сб.: «Археологические исследования средневекового Крыма», К., 1968, стр. . 45-82; I. С. Пiоро. Археологiчнi дослiдження залишкiв садиби на середньовiчному городищi Мангуп у 1969 роцi. Вiсник Киiвського унiверситету, № 14, 1972, стр. 113-118.
- Н. В. Малицкий. Заметки по эпиграфике Мангупа. Известия Государственной Академии истории материальной культуры (ИГАИМК), вып. 71, Л., 1933; В. В. Латышев. Сборник греческих надписей христианских времен из южной России, СПб, 1896, стр. 48-58, табл. V, VI.
- А. Л. Якобсон. Раннесредневековый Херсонес. МИА, № 63, М.-Л., 1959, стр. 115-124, 195-197.
- В. Н. Дьяков. Таврика в эпоху римской оккупации. Ученые записки Московского педагогического института, т. XXVIII, М., 1942, стр. 64 и сл.
- П. И. Кеппен. Крымский сборник, стр. 61; Э. И. Соломоник, О. И. Домбровский. О локализации страны Дори. В сб.: «Археологические исследования средневекового Крыма», К., 1968, стр. 11-44; О. I. Домбровський. Стародавнi стiни на перевалах головного пасма Кримських гiр. Археологiя, т. XII, К., 1961, стр. 155-167; А. Л. Якобсон. Средневековый Крым. М.- Л., 1964, стр. 11 и сл..; Его же. «Археологические исследования средневекового Крыма». Рецензия. СА, 1971, № 3, стр. 298-301; И. А. Антонова, В. Н. Даниленко. «Археологические исследования средневекового Крыма». Рецензия. СА, 1972, № 2, стр. 228-229.
- Ф. Энгельс. Происхождение семьи, частной собственности и государства. М., 1970, стр. 170 и сл.
- Отчет Южнобережного отряда Крымской археологической экспедиции за 1965-1969 гг. Архив Крымского отдела Института археологии АН УССР; О. И. Домбровский. Средневековые поселения и «исары» крымского Южнобережья. Сб. «Феодальная Таврика» (в печати).
- В. Г. Васильевский. Труды, т. II, вып. 2, СПб, 1912, стр. 351-427.
- В. П. Бабенчиков. Из истории Крымской Готии. В сб.: «Материалы Эски-Керменской экспедиции, 1931-1933 гг.», М.-Л., 1935, стр. 145-155; И. А. Баранов. О восстании Иоанна Готского в 787 г. Сб. «Феодальная Таврика» (в печати).
- А. Л. Якобсон. Средневековый Крым. М.-Л., 1964, стр. 31, 32; М. И. Артамонов. История хазар. Л., 1962, стр. 253-258.
- П. И. Кеппен. Крымский сборник, стр. 57, 58.
- М. А. Тиханова. Дорос-Феодоро в истории средневекового Крыма, стр. 320, 326.
- А. А. Белецкий. Греческие элементы в географических названиях Крыма, Этимология, 1967, М., 1969, стр. 202.
- В кн.: «История» Льва Диакона Килийского. Перевод и комментарии Д. Попова. СПб, 1820.
- Б. Д. Греков. «Повесть временных лет» о походе Владимира на Корсунь. Известия Таврического общества истории, археологии и этнографии, т. III (60), Симферополь, 1929, стр. 101-104, 111 и сл.
- В. Г. Васильевский. Записка греческого топарха. Журнал Министерства народного просвещения (ЖМНП), ч. 185, СПб, 1876, стр. 368-434; Его же. Русско-византийские отрывки. Труды, т. IV, Л., 1930; Ф. И. Успенский. Византийские владения на северном берегу Черного моря в IX-X вв. Киевская старина, т. 25, № 5-6, К., 1889, стр. 253-294; П. Милюков. Время и место действия записки греческого топарха. В сб.: «Труды 8-го археологического съезда в Москве», т. III, 1897, стр. 278-289; М. В. Левченко. К вопросу о «Записке греческого топарха». В кн.: «Очерки по истории русско-византийских отношений», М., 1956, стр. 291-339.
- А. Куник. О записке готского топарха. Записки императорской Академии наук, т. 24, СПб, 1874, стр. 61-93, 116-127; П. Т. Бурачков. О записке готского топарха. ЖМНП, ч. 192, СПб; 1877, стр. 199-252; F. Westberg. Die Fragmente des Toparcha goticus (anonymus tauricus) aus dem 10 Jahrhundert. Записки императорской Академии наук, т. V, № 2, 1001, Ф. Вестберг. Записка готского топарха/ Византийский временник, т. XV, вып. I, СПб, 1909, стр. 71-132, вып. 2-3, СПб, 1910, стр. 227-286; Ю. Кулаковский. Записка готского топарха. ЖМНП, ч. 340, СПб, 1902, стр. 449-459; С. Шестаков. Памятники христианского Херсонеса. Вып. III, М., 1908, стр. 80-81; А. Васильев. Готы в Крыму. Известия Академии истории материальной культуры, т. II., 1927, стр. 179-282; Б. Д. Греков, Киевская Русь, М., 1949, стр. 461.
- Г. Г. Литаврин. Записка греческого топарха. В сб.: «Из истории средневековой Европы» (X-XVII в.), М., 1957, стр.114-127.
- В. Г. Брюсова. Русско-византийские отношения середины XI в. Вопросы истории, 1972, № 3, стр. 51-62.
- Н. И. Репников. Эски-Кермен в свете археологических разведок 1928-29 гг. Готский сборник, ИГАИМК, т. XII, вып. 1-8, Л., 1932, стр 139-140.
- Н. И. Репников Ук. соч., стр. 144, 150; Е. В. Веймарн. Оборонительные сооружения Эски-Кермена (опыт реконструкции). В сб.: «История и археология средневекового Крыма», стр. 53.
- Н. В. Малицкий. Ук. соч., стр. 5-14.
- Н. М. Карамзин. История государства Российского, т. VI, СПб, 1892, прим. 124 и 125.
- Н. М. Карамзин. Ук. соч., т. IX, стр 82, 211 и сл.
- Отчет о работе Мангупского отряда Крымской экспедиции Института археологии АН УССР и Бахчисарайского историко-археологического музея в 1971г. Архив Крымского отдела Института археологии АН УССР.
- Отчет о раскопках колодца на г. Мангуп. Архив Крымского отдела Института археологии АН УССР.
- Мартин Броневский Описание Крыма (Tartariae descriptio). ЗООИД, т. VI, 1867, стр. 343.
- Е. В. Веймарн. Разведки оборонительных стен и некрополя. МИА, № 34, стр. 420-424; Отчет о работах Мангупского отряда Крымской экспедиции в 1970 г. Архив Крымского отдела Института археологии АН УССР.
- Отчет о работах Мангупского отряда (1970 г.).
- А. Л. Якобсон. Дворец, стр. 390-418; Е. Г. Суров. Княжеский дворец на плато Мангуп-Кале. В сб.: «Средневековые древности Восточной Европы». Краткие сообщения Института археологии АН СССР, № 129, М., 1972, стр. 96 и сл.
- М. А. Тиханова. Базилика, стр. 334-389.
- О. И. Домбровский. Фрески средневекового Крыма. К.., 1966, стр. 78-89.
- В. К. Гарагуля. Общины «Готии». В кн.: «Дорогой тысячелетий», Симферополь, 1965, стр. 98-118.
- В. М. Маликов. Виноградарство в средневековом Крыму. Рукопись. Архив Крымского отдела Института археологии АН УССР.
- Е. В. Веймарн. О виноградарстве и виноделии в древнем и средневековом Крыму. Краткие сообщения Института археологии АН УССР, № 10, К., 1960, стр. 109-117.
- Отчет о работах Мангупского отряда (1970 г.).
- П. И. Кеппен. Крымский сборник, стр. 95-97; А. Л. Бертье-Делагард. Каламита и Феодоро, стр. 34 и сл.
- Н. И. Репников. Княжество Феодоро и падение Готии, стр 69-80.
- П. И Кеппен. Ук. соч., стр. 215, 216; А. П. Колли. Хаджи-Гирей и его политика (по генуэзским источникам). ИТУАК, вып. 50, Симферополь, 1913, стр. 111, 116-121.
- Э. В. Данилова. К истории генуэзских колоний в Крыму. Материалы XXX научной сессии Крымского мединститута, вып. 2, Симферополь, 1969, стр. 264-268.
- Н. И. Репников Княжество Феодоро и падение Готии, стр. 120.
- Н. И. Репников. Ук. соч., стр. 139.
- П. И. Кеппен. Крымский сборник, стр 280.


















